Бизнес
Цена на кв.м: 1509.62
Тип апартамент: 3 - стаен
Квадратура: 104 кв.м
Година на строителство: 2026 г.
Строителство: Тухла
Етаж: 2-ри
Брой етажи на сградата: 4
Последен етаж
Отопление: Електричество
Обзавеждане: Необзаведен
Състояние на сградата: В строеж
Преход: Без преход
Описание
International Real Estates (IRE) представя
ПРОДАЖБА НА ТРИСТАЕН АПАРТАМЕНТ С ЮЖНО ИЗЛОЖЕНИЕ
Предлагаме за продажба просторен и светъл тристаен апартамент в модерна новострояща се сграда. Имотът се отличава с отлично разпределение, липса на преходни стаи и благоприятно изложение.
ОСНОВНИ ХАРАКТЕРИСТИКИ
Етаж: Втори жилищен (изцяло покрит).
Изложение: Юг / Изток / Запад.
Статус: Подходящ за банково финансиране.
Степен на завършеност: Издава се по БДС.
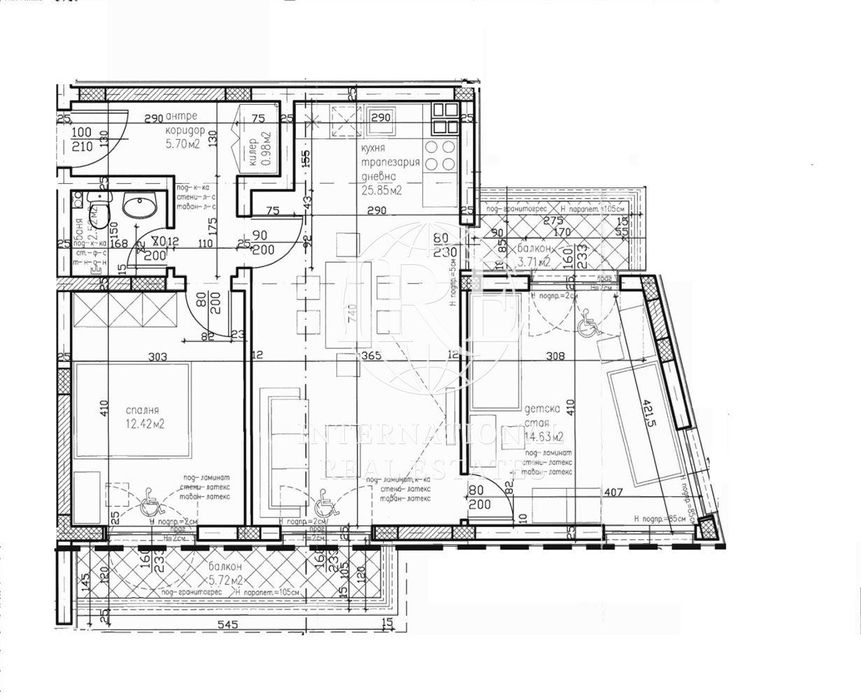
ВЪТРЕШНО РАЗПРЕДЕЛЕНИЕ Жилището предлага функционална жизнена среда със следното разпределение:
Входно антре;
Светла всекидневна с обособен кухненски бокс и трапезария;
Две самостоятелни спални;
Баня с тоалетна;
Килер/складово помещение;
Два балкона.
ПРЕДИМСТВА И ВЪЗМОЖНОСТИ
Завършване „до ключ“: Възможност за пълно завършване на преференциална цена с материали по избор на клиента.
Паркиране: Възможност за закупуване на собствено паркомясто.
Сградата: Модерна архитектурна визия, луксозно изпълнени общи части, висок клас електрически асансьор и система за контролиран достъп.
Този имот съчетава комфорта на модерното строителство с възможността да бъде завършен изцяло по Ваш вкус.
За повече информация и организиране на оглед, моля свържете се с нас на посочения телефон и цитирайте код на обявата: 1026
International Real Estates предлага пълно съдействие при покупка, включително безплатна консултация и подкрепа при банково кредитиране – избор на най-добри условия и съдействие до финализиране на сделката.
ПРОДАЖБА НА ТРИСТАЕН АПАРТАМЕНТ С ЮЖНО ИЗЛОЖЕНИЕ
Предлагаме за продажба просторен и светъл тристаен апартамент в модерна новострояща се сграда. Имотът се отличава с отлично разпределение, липса на преходни стаи и благоприятно изложение.
ОСНОВНИ ХАРАКТЕРИСТИКИ
Етаж: Втори жилищен (изцяло покрит).
Изложение: Юг / Изток / Запад.
Статус: Подходящ за банково финансиране.
Степен на завършеност: Издава се по БДС.
ВЪТРЕШНО РАЗПРЕДЕЛЕНИЕ Жилището предлага функционална жизнена среда със следното разпределение:
Входно антре;
Светла всекидневна с обособен кухненски бокс и трапезария;
Две самостоятелни спални;
Баня с тоалетна;
Килер/складово помещение;
Два балкона.
ПРЕДИМСТВА И ВЪЗМОЖНОСТИ
Завършване „до ключ“: Възможност за пълно завършване на преференциална цена с материали по избор на клиента.
Паркиране: Възможност за закупуване на собствено паркомясто.
Сградата: Модерна архитектурна визия, луксозно изпълнени общи части, висок клас електрически асансьор и система за контролиран достъп.
Този имот съчетава комфорта на модерното строителство с възможността да бъде завършен изцяло по Ваш вкус.
За повече информация и организиране на оглед, моля свържете се с нас на посочения телефон и цитирайте код на обявата: 1026
International Real Estates предлага пълно съдействие при покупка, включително безплатна консултация и подкрепа при банково кредитиране – избор на най-добри условия и съдействие до финализиране на сделката.
ID: 147015790
Контакт с продавача
xxx xxx xxx

