Бизнес
Цена на кв.м: 1494.59
Тип апартамент: 3 - стаен
Квадратура: 111 кв.м
Година на строителство: 2027 г.
Строителство: Тухла
Етаж: 5-ти
Брой етажи на сградата: 18
Последен етаж
Отопление: Електричество
Обзавеждане: Необзаведен
Състояние на сградата: Завършена
Преход: Без преход
Описание
Код на обявата - 7280
Тристаен апартамент.
Нова, модерна сграда с уникална локация
Доказан строител
Предлагаме ви тристаен, тухлен апартамент за продажба в ЖК Младост, гр. Варна.
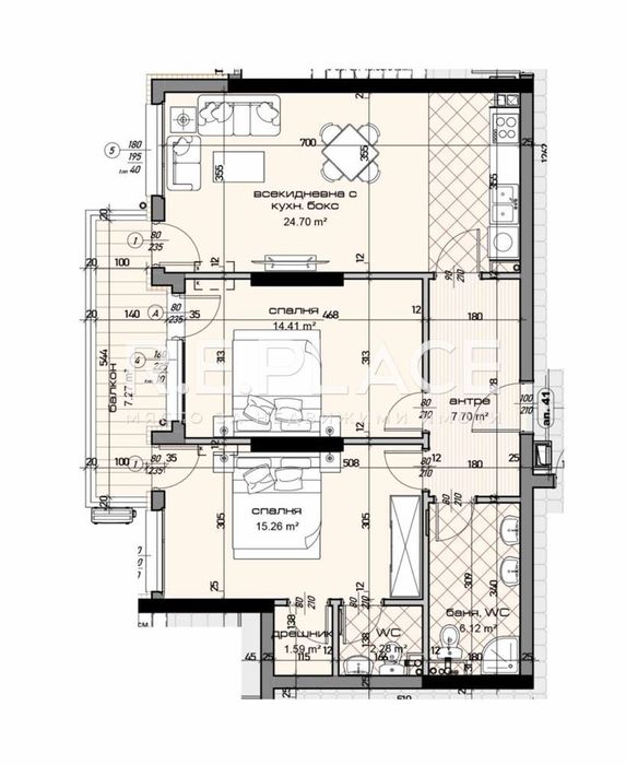
Апартаментът е с площ от 110,81 кв. м., на пети жилищен етаж, в новострояща се модерна, тухлена сграда.
Състои се от дневен тракт с кухня, две спални, едната от които с дрешник и санитарно помещение, тераса с излаз от трите стаи, баня с тоалетна и коридор.
Имотът се продава завършен по БДС.
Входът е с луксозно изпълнени общи части, контрол на достъпа и асансьор.
Свободни за продажба са двустайни и тристайни апартаменти, с възможност за избор по вид и етаж, които ще бъдат завършени по БДС. Общите части на сградите ще бъдат луксозно изпълнени, с качествени материали.
Районът е предпочитан за живеене. В близост се намират магазини, спирки на обществения транспорт, стадион, детска площадка, училища, детска градина, медицински комплекс, бензиностанции др.
Тристаен апартамент.
Нова, модерна сграда с уникална локация
Доказан строител
Предлагаме ви тристаен, тухлен апартамент за продажба в ЖК Младост, гр. Варна.
Апартаментът е с площ от 110,81 кв. м., на пети жилищен етаж, в новострояща се модерна, тухлена сграда.
Състои се от дневен тракт с кухня, две спални, едната от които с дрешник и санитарно помещение, тераса с излаз от трите стаи, баня с тоалетна и коридор.
Имотът се продава завършен по БДС.
Входът е с луксозно изпълнени общи части, контрол на достъпа и асансьор.
Свободни за продажба са двустайни и тристайни апартаменти, с възможност за избор по вид и етаж, които ще бъдат завършени по БДС. Общите части на сградите ще бъдат луксозно изпълнени, с качествени материали.
Районът е предпочитан за живеене. В близост се намират магазини, спирки на обществения транспорт, стадион, детска площадка, училища, детска градина, медицински комплекс, бензиностанции др.
ID: 141876923
Контакт с продавача
xxx xxx xxx

