Бизнес
Цена на кв.м: 1367.37
Тип апартамент: 3 - стаен
Квадратура: 95 кв.м
Година на строителство: 2026 г.
Строителство: Тухла
Етаж: 9-ти
Брой етажи на сградата: 9
Последен етаж
Отопление: Електричество
Обзавеждане: Необзаведен
Състояние на сградата: В строеж
Преход: Без преход
Описание
International Real Estate Ви представя двустаен апартамент в новострояща се сграда в кв. Кайсиева градина.
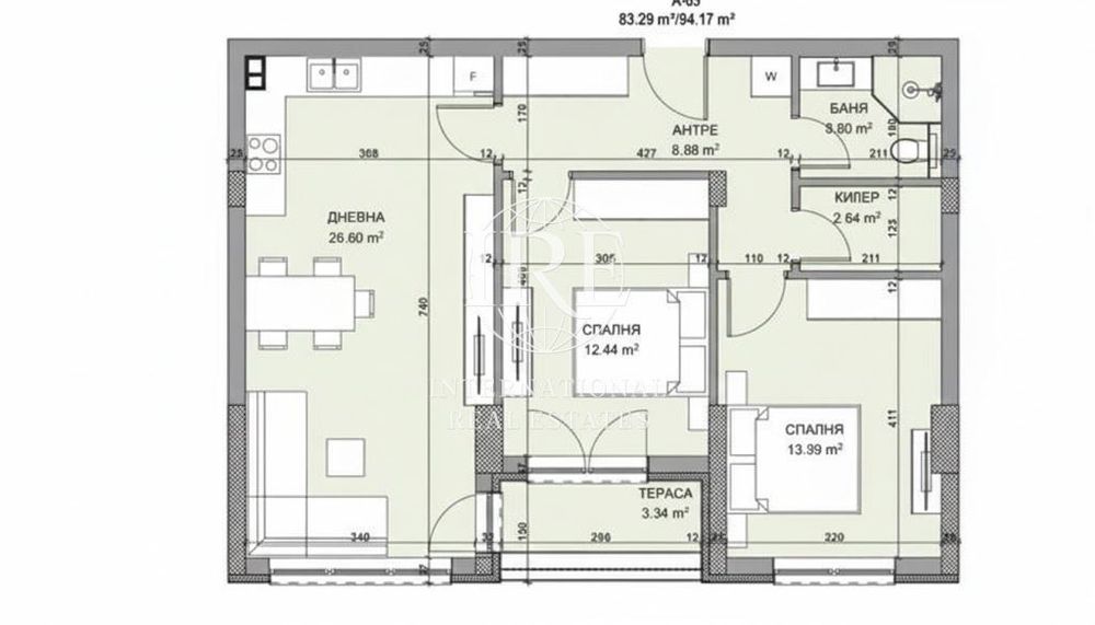
Разположен на 9-ти етаж с площ от 95 кв.м. и със следното разпределение : входно антре, всекидневна с кух,бокс, две спалня, баня+тоалетна, килер и тераса
Доказан строител и богато портфолио от завършени сгради.
Чудесна възможност за закупуване на инвестиционен имот или за лично ползване.
В непосредствена близост е у-ще Стоян Михайловски, магазини, аптеки и много други удобства.
Сградата е пред акт 14, а снимките по БДС са илюстративни снимки с цел по ясна представа как ще бъде завършено.
За повече информация и огледи се обадете на посочения телефон и цитирайте кода на офертата.
Код на офертата : 601
International Real Estate предлага пълно съдействие по целия процес на покупко-продажбата съдействаме при кредитиране, извършваме проверка на имота и работим в партньорство с всички водещи банкови институции в страната. Ще бъдем до Вас на всяка стъпка по пътя към Вашия нов дом.
Разположен на 9-ти етаж с площ от 95 кв.м. и със следното разпределение : входно антре, всекидневна с кух,бокс, две спалня, баня+тоалетна, килер и тераса
Доказан строител и богато портфолио от завършени сгради.
Чудесна възможност за закупуване на инвестиционен имот или за лично ползване.
В непосредствена близост е у-ще Стоян Михайловски, магазини, аптеки и много други удобства.
Сградата е пред акт 14, а снимките по БДС са илюстративни снимки с цел по ясна представа как ще бъде завършено.
За повече информация и огледи се обадете на посочения телефон и цитирайте кода на офертата.
Код на офертата : 601
International Real Estate предлага пълно съдействие по целия процес на покупко-продажбата съдействаме при кредитиране, извършваме проверка на имота и работим в партньорство с всички водещи банкови институции в страната. Ще бъдем до Вас на всяка стъпка по пътя към Вашия нов дом.
ID: 146483379
Контакт с продавача
xxx xxx xxx

