Бизнес
Цена на кв.м: 2800
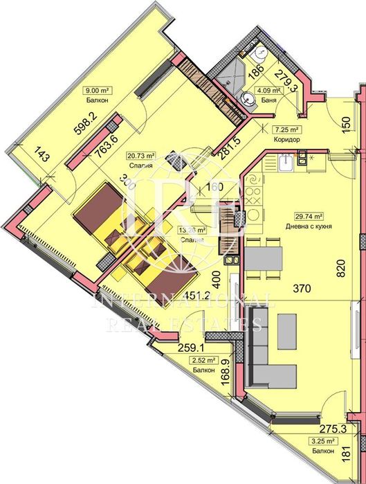
Тип апартамент: 3 - стаен
Квадратура: 117 кв.м
Година на строителство: 2026 г.
Строителство: Тухла
Етаж: 8-ми
Брой етажи на сградата: 10
Последен етаж
Отопление: Електричество
Обзавеждане: Необзаведен
Състояние на сградата: Завършена
Преход: Без преход
Описание
International Real Estates (IRE) предлага ЕКСКЛУЗИВНО тристаен апартамент 117кв.м в нова сграда пред АКТ16 в кв.Бриз. Жилището се намира на осми непоследен етаж.Разпределение: 30кв.м дневна , две спални една от която 20 кв.м с дрешник м и 13кв.м , две санитарни помещения, три тераси. Към имота може да се закупи голямо подземно паркомясто. За повече информация и огледи обадете се на посоченият телефон.
08********88
327 600 евро
08********88
327 600 евро
ID: 145589022
Контакт с продавача
xxx xxx xxx

