Бизнес
Цена на кв.м: 1381.38
Тип апартамент: 3 - стаен
Квадратура: 100 кв.м
Година на строителство: 2026 г.
Строителство: Тухла
Етаж: 3-ти
Брой етажи на сградата: 5
Последен етаж
Отопление: Електричество
Обзавеждане: Необзаведен
Състояние на сградата: Завършена
Преход: Без преход
Описание
СМЕНИ АДРЕСА предлага да станете собственик на светъл просторен тристаен апартамент НОВО СТРИТЕЛСТВО на 10 минути от центъра на Варна в кв. Аспарухово.
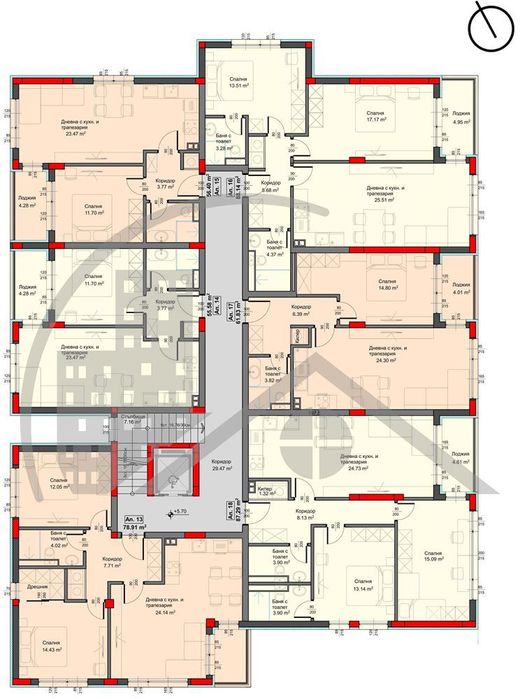
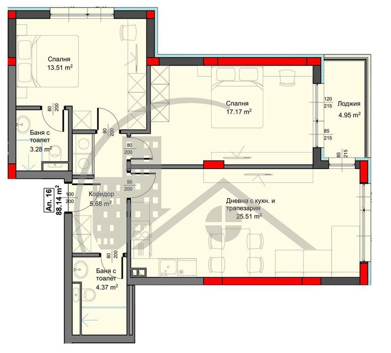
Жилището е с обща площ 113 кв.м (101 кв.м чиста площ), разположено на четвърти етаж в новострояща се тухлена сграда с асансьор и се състои от входно антре, дневна с кухненска част (25.51 кв.м), две спални (13.51 кв.м и 17.17 кв.м ), едната от които с излаз на тераса, а другата със собствена баня със санитарен възел, още една баня и килер. От жилището ще се открива прекрасна панорамна гледка към цяла Варна и морето.
Сградата ще бъде изпълнена с висок клас строителни материали от доверен строител с множество на брой завършени обекти в града.
Апартаментът ще бъде издаден по БДС - входна врата, стени на турбозолена мазилка, подове на циментова замазка, висок клас PVC дограма, Ел, табло, ключове и контакти, осветление на фасунга, ВиК на тапа.
Възможност за закупуване на външно паркомясто в двора на сградата. Налични са и други двустайни и тристайни апартаменти.
Удобни разсрочени плащания, прекрасна инвестиционна възможност, както за закупуване с цел живеене и отдаване под наем. Възможност за теглене на кредит след АКТ14, очаквано разрешение за експлоатация - 2026 година.
Сградата е разположена на тихо и комуникативно място, на пешеходно разстояние от автобусна спирка, супермаркети, училище и други удобства в района.
Агенция СМЕНИ АДРЕСА предлага и други подобни имоти, с което улеснява избора Ви, съдейства за отпускане на кредити при най-добри условия, извършва обстойна юридическа проверка на имота и изготвя всички необходими документи за сделка.
За повече информация и огледи не се колебайте да се свържете с мен, като цитирате КОД:011491
СМЕНИ АДРЕСА с нас, докато другите все още търсят!
Жилището е с обща площ 113 кв.м (101 кв.м чиста площ), разположено на четвърти етаж в новострояща се тухлена сграда с асансьор и се състои от входно антре, дневна с кухненска част (25.51 кв.м), две спални (13.51 кв.м и 17.17 кв.м ), едната от които с излаз на тераса, а другата със собствена баня със санитарен възел, още една баня и килер. От жилището ще се открива прекрасна панорамна гледка към цяла Варна и морето.
Сградата ще бъде изпълнена с висок клас строителни материали от доверен строител с множество на брой завършени обекти в града.
Апартаментът ще бъде издаден по БДС - входна врата, стени на турбозолена мазилка, подове на циментова замазка, висок клас PVC дограма, Ел, табло, ключове и контакти, осветление на фасунга, ВиК на тапа.
Възможност за закупуване на външно паркомясто в двора на сградата. Налични са и други двустайни и тристайни апартаменти.
Удобни разсрочени плащания, прекрасна инвестиционна възможност, както за закупуване с цел живеене и отдаване под наем. Възможност за теглене на кредит след АКТ14, очаквано разрешение за експлоатация - 2026 година.
Сградата е разположена на тихо и комуникативно място, на пешеходно разстояние от автобусна спирка, супермаркети, училище и други удобства в района.
Агенция СМЕНИ АДРЕСА предлага и други подобни имоти, с което улеснява избора Ви, съдейства за отпускане на кредити при най-добри условия, извършва обстойна юридическа проверка на имота и изготвя всички необходими документи за сделка.
За повече информация и огледи не се колебайте да се свържете с мен, като цитирате КОД:011491
СМЕНИ АДРЕСА с нас, докато другите все още търсят!
ID: 142060703
Контакт с продавача
xxx xxx xxx

