Бизнес
Цена на кв.м: 1821.05
Тип апартамент: 3 - стаен
Квадратура: 114 кв.м
Година на строителство: 2026 г.
Строителство: Тухла
Етаж: 2-ри
Брой етажи на сградата: 3
Отопление: Електричество
Обзавеждане: Необзаведен
Състояние на сградата: Завършена
Преход: Без преход
Описание
Продава се 3-стаен апартамент в Бистрица  114.46 кв.м | Бутикова сграда ап. 8
Предлагаме за продажба тристаен апартамент с площ от 114.46 кв.м, разположен на втори етаж от триетажна бутикова сграда в престижния и зелен район кв. Бистрица отлична комбинация от спокойствие, природа и удобен достъп до града.
Основни характеристики:
Площ: 114.46 кв.м
Етаж: 2 от 3
Бутикова сграда с малък брой апартаменти
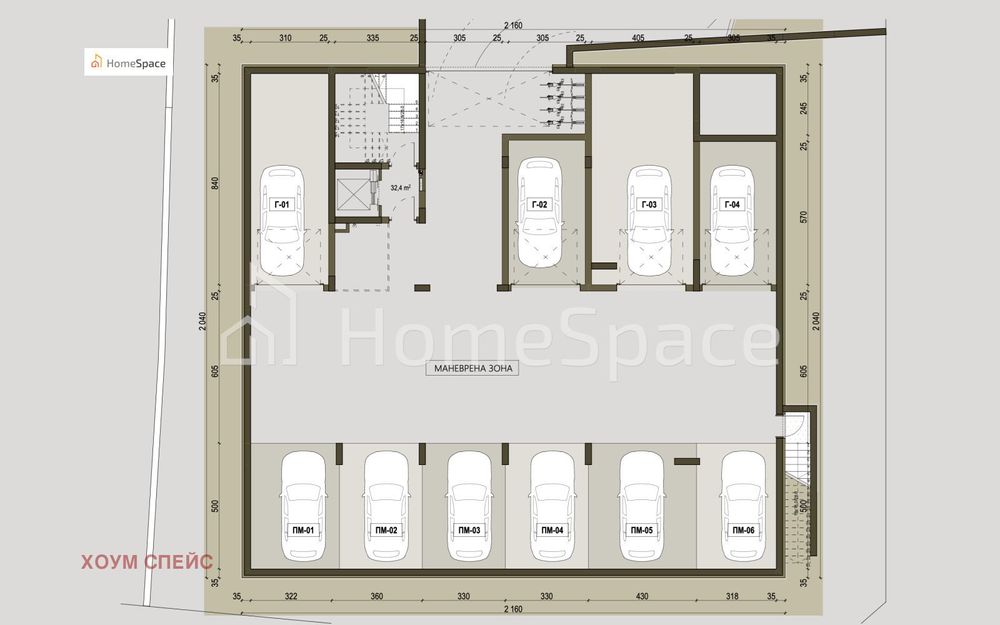
Опция за закупуване на гаражи и паркоместа
За сградата:
Конструкция: скелетно-безгредова със стоманобетонни колони и шайби
Външни стени: тухла 25 см с топлоизолация EPS 10 см
Вътрешни преградни стени: тухлена зидария 12 см
Дограма: висок клас шесткамерна PVC със стъклопакет 44 мм
Строителство:
Проектът стартира през май 2025 г.
Срок за завършване: 20 месеца
Архитектурният проект може да бъде разгледан в офиса, а локацията на място
Финансиране:
Предоставяме безплатно съдействие за ипотечно кредитиране чрез наш доверен партньор CREDIT SPACE, с дългогодишен опит в консултиране и финансиране на недвижими имоти.
За повече информация и оглед: 08******66 Реф. номер: SOF013
Предлагаме за продажба тристаен апартамент с площ от 114.46 кв.м, разположен на втори етаж от триетажна бутикова сграда в престижния и зелен район кв. Бистрица отлична комбинация от спокойствие, природа и удобен достъп до града.
Основни характеристики:
Площ: 114.46 кв.м
Етаж: 2 от 3
Бутикова сграда с малък брой апартаменти
Опция за закупуване на гаражи и паркоместа
За сградата:
Конструкция: скелетно-безгредова със стоманобетонни колони и шайби
Външни стени: тухла 25 см с топлоизолация EPS 10 см
Вътрешни преградни стени: тухлена зидария 12 см
Дограма: висок клас шесткамерна PVC със стъклопакет 44 мм
Строителство:
Проектът стартира през май 2025 г.
Срок за завършване: 20 месеца
Архитектурният проект може да бъде разгледан в офиса, а локацията на място
Финансиране:
Предоставяме безплатно съдействие за ипотечно кредитиране чрез наш доверен партньор CREDIT SPACE, с дългогодишен опит в консултиране и финансиране на недвижими имоти.
За повече информация и оглед: 08******66 Реф. номер: SOF013
ID: 145897876
Контакт с продавача
xxx xxx xxx
