Бизнес
Цена на кв.м: 2012.88
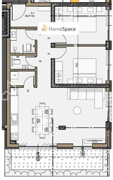
Тип апартамент: 3 - стаен
Квадратура: 100 кв.м
Година на строителство: 2027 г.
Строителство: Тухла
Етаж: 1-ви
Брой етажи на сградата: 4
Последен етаж
Отопление: Електричество
Обзавеждане: Необзаведен
Състояние на сградата: Завършена
Преход: Без преход
Описание
Предлагаме за продажба тристаен апартамент, разположен на партерен етаж в новострояща се бутикова сграда в Малинова долина.
Апартаментът е с чиста площ 92.97 кв.м и обща площ 100.32 кв.м, с изложение юг изток и самостоятелен двор от 52.90 кв.м перфектен за зона за отдих, барбекю или детски кът.
Жилището се предава на шпакловка и замазка, като се предлага гъвкава схема на плащане.
Начало на строителството: юли 2024 г.
Акт 14: ноември 2025 г.
Акт 16: началото на 2027 г.
Локация и предимства:
Сградата е ситуирана под Южната дъга на Околовръстен път, западно от ул. Тодор Недков, в непосредствена близост до:
бъдещи метростанции НСА и Ринг Мол;
бул. Симеоновско шосе, бул. Климент Охридски и бъдещото продължение на бул. Едуард Генов;
Студентски град, Ring Mall, IKEA и лифт Симеоново.
Район и среда:
Малинова долина е динамично развиващ се квартал с изцяло нова инфраструктура нови улици, алеи, ВиК и ел. мрежа.
Районът се отличава с много зелени площи, ниско застрояване (кота-корниз до 10 м) и свободно стоящи сгради, което осигурява повече пространство, светлина и гледки за всяко жилище.
Всички сгради в регулационен квартал 78 и съседните са ново строителство (след 2023 г.), което гарантира модерна градска среда и хармонична архитектура.
Предимства:
Самостоятелен двор 52.9 кв.м
Южно изложение
Гъвкави схеми на плащане
Фиксирана цена с включено ДДС
Спокойна среда с нова инфраструктура
Близо до бъдещи метростанции и ключови булеварди
Финансиране:
Предоставяме безплатно съдействие за ипотечно кредитиране чрез наш доверен партньор CREDIT SPACE, с дългогодишен опит в консултиране и финансиране на недвижими имоти.
За повече информация и оглед: 08******66 Реф. номер: SOF018
Апартаментът е с чиста площ 92.97 кв.м и обща площ 100.32 кв.м, с изложение юг изток и самостоятелен двор от 52.90 кв.м перфектен за зона за отдих, барбекю или детски кът.
Жилището се предава на шпакловка и замазка, като се предлага гъвкава схема на плащане.
Начало на строителството: юли 2024 г.
Акт 14: ноември 2025 г.
Акт 16: началото на 2027 г.
Локация и предимства:
Сградата е ситуирана под Южната дъга на Околовръстен път, западно от ул. Тодор Недков, в непосредствена близост до:
бъдещи метростанции НСА и Ринг Мол;
бул. Симеоновско шосе, бул. Климент Охридски и бъдещото продължение на бул. Едуард Генов;
Студентски град, Ring Mall, IKEA и лифт Симеоново.
Район и среда:
Малинова долина е динамично развиващ се квартал с изцяло нова инфраструктура нови улици, алеи, ВиК и ел. мрежа.
Районът се отличава с много зелени площи, ниско застрояване (кота-корниз до 10 м) и свободно стоящи сгради, което осигурява повече пространство, светлина и гледки за всяко жилище.
Всички сгради в регулационен квартал 78 и съседните са ново строителство (след 2023 г.), което гарантира модерна градска среда и хармонична архитектура.
Предимства:
Самостоятелен двор 52.9 кв.м
Южно изложение
Гъвкави схеми на плащане
Фиксирана цена с включено ДДС
Спокойна среда с нова инфраструктура
Близо до бъдещи метростанции и ключови булеварди
Финансиране:
Предоставяме безплатно съдействие за ипотечно кредитиране чрез наш доверен партньор CREDIT SPACE, с дългогодишен опит в консултиране и финансиране на недвижими имоти.
За повече информация и оглед: 08******66 Реф. номер: SOF018
ID: 145898358
Контакт с продавача
xxx xxx xxx
