Бизнес
Цена на кв.м: 3608.11
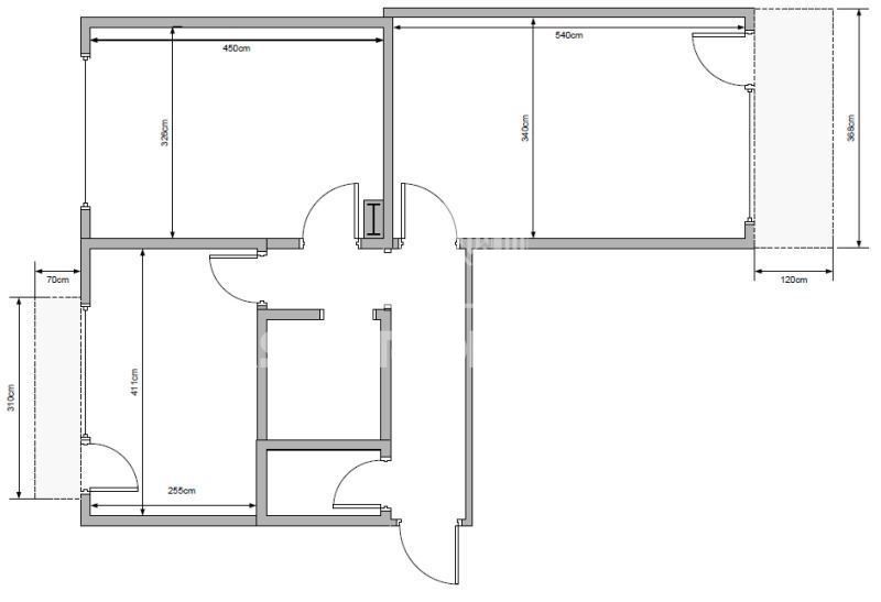
Тип апартамент: 3 - стаен
Квадратура: 74 кв.м
Година на строителство: 1970 г.
Строителство: Тухла
Етаж: 1-ви
Брой етажи на сградата: 6
Последен етаж
Отопление: ТЕЦ
Обзавеждане: Обзаведен
Състояние на сградата: Завършена
Преход: Без преход
Описание
Реф. № 012590
Агенция за недвижими имоти BAS Properties предлага за продажба напълно обзаведен тристаен апартамент, разположен в един от най-предпочитаните и тихи квартали на София – ж.к. Гео Милев, само на минути от бъдеща метростанция на лъч 3.
Основни параметри:
- Площ: 74 кв.м.
- Строителство: Тухла, 1970 г.
- Етаж: 1 от 6
- Отопление: ТЕЦ и електричество
Разпределение:
- Входно антре
- Всекидневна с трапезария и кухненски бокс
- Две спални
- Баня с тоалетна
- Отделна тоалетна
- Две тераси с гледки към паркова среда.
Локация и предимства:
Имотът се намира на отлично място — в непосредствена близост до бизнес парк BSR Sofia, Sky City Mall, Балетно училище и Институт за чуждестранни студенти. На пешеходно разстояние са още парк „Гео Милев“, Стадион „Академик“, множество магазини, пазари, трамвайни и автобусни спирки.
Апартаментът е след пълен основен ремонт от 2018 г., включващ:
- нови ВиК инсталации с полипропиленови тръби и подменени вертикални щрангове;
- ново електрическо табло и изцяло ново окабеляване;
- изградени инсталации за интернет и телевизия;
- петкамерна дограма;
- нови италиански радиатори;
- външна топлоизолация и високи тавани, гарантиращи ниски енергийни разходи;
- кухня, оборудвана с миялна, фурна, керамични котлони, голям хладилник и пералня.
Терасите са обезопасени с плътни ролетни щори.
Входът е отлично поддържан, с контролиран достъп.
Имот, който предлага комфорт, сигурност и удобство — както за живеене, така и за инвестиция.
За допълнителна информация и оглед – свържете се с нас!
Предлагаме напълно безплатно съдействие при жилищно кредитиране от банка.
Агенция за недвижими имоти BAS Properties предлага за продажба напълно обзаведен тристаен апартамент, разположен в един от най-предпочитаните и тихи квартали на София – ж.к. Гео Милев, само на минути от бъдеща метростанция на лъч 3.
Основни параметри:
- Площ: 74 кв.м.
- Строителство: Тухла, 1970 г.
- Етаж: 1 от 6
- Отопление: ТЕЦ и електричество
Разпределение:
- Входно антре
- Всекидневна с трапезария и кухненски бокс
- Две спални
- Баня с тоалетна
- Отделна тоалетна
- Две тераси с гледки към паркова среда.
Локация и предимства:
Имотът се намира на отлично място — в непосредствена близост до бизнес парк BSR Sofia, Sky City Mall, Балетно училище и Институт за чуждестранни студенти. На пешеходно разстояние са още парк „Гео Милев“, Стадион „Академик“, множество магазини, пазари, трамвайни и автобусни спирки.
Апартаментът е след пълен основен ремонт от 2018 г., включващ:
- нови ВиК инсталации с полипропиленови тръби и подменени вертикални щрангове;
- ново електрическо табло и изцяло ново окабеляване;
- изградени инсталации за интернет и телевизия;
- петкамерна дограма;
- нови италиански радиатори;
- външна топлоизолация и високи тавани, гарантиращи ниски енергийни разходи;
- кухня, оборудвана с миялна, фурна, керамични котлони, голям хладилник и пералня.
Терасите са обезопасени с плътни ролетни щори.
Входът е отлично поддържан, с контролиран достъп.
Имот, който предлага комфорт, сигурност и удобство — както за живеене, така и за инвестиция.
За допълнителна информация и оглед – свържете се с нас!
Предлагаме напълно безплатно съдействие при жилищно кредитиране от банка.
ID: 146166818
Контакт с продавача
xxx xxx xxx

