Бизнес
Цена на кв.м: 1071.43
Тип апартамент: 3 - стаен
Квадратура: 140 кв.м
Година на строителство: 2024 г.
Строителство: Тухла
Етаж: 3-ти
Брой етажи на сградата: 5
Последен етаж
Отопление: Електричество
Обзавеждане: Необзаведен
Състояние на сградата: Завършена
Преход: Без преход
Описание
БЕЗ КОМИСИОННА ОТ КУПУВАЧ!!!
Монс Пропъртис има удоволствието да Ви представи за продажба тристаен апартамент в новострояща се луксозна сграда, кв. "Широк център", гр. Габрово.
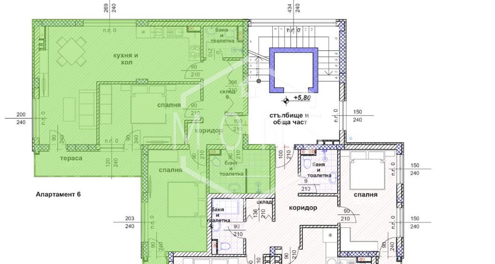
Имотът е с площ от 140 м2.
Разпределението е както следва: коридор, две спални, всекидневна с кухненски бокс, два броя баня с тоалетна, склад и тераса.
Терасата предоставя прекрасна панорамна гледка към града, идеална за отдих и релакс в края на деня.
Строителство - тухла.
Отопление - газ и електричество.
Сградата е с изчистена визия като апартаментите се издават в степен на завършеност по БДС – на мазилка и замазка, блиндирани входни врати, висококачествена дограма, външна топлоизолация, монтирани ключове и контакти.
С модерния асансьор няма да има нужда да се притеснявате за изкачването на по-високите етажи.
Етап на строителство - Акт 15, с очакван Акт 16 - м. Октомври, 2025г.
Паркирането в сградата е решено с полуподземен етаж, който разполага с 9 паркоместа на закрито и още 7 паркоместа на открито.
Описание на квартала:
Широк център на Габрово предлага перфектната комбинация от спокойствие и градски живот. В близост ще откриете различни заведения, магазини и културни забележителности, които предоставят богат избор от възможности за развлечение и пазаруване.
Код на офертата: 0146
Ние от Монс Пропъртис можем да Ви съдействаме със следните услуги:
-Безплатно посредничество при кредитиране
от всички банки
-Юридически услуги
Two-bedroom apartment in a new luxury building, sq. "Broad Center", gr. Gabrovo
NO COMMISSION FROM BUYER!!!
Mons Properties is pleased to present for sale a two-bedroom apartment in a newly built luxury building, sq. "Shirock Center", Sofia, Bulgaria. The property is located in a new building, in the center of Broad Street.
The property has an area of 140 m2.
The layout is as follows: corridor, two bedrooms, living room with kitchenette, two bathroom with toilet, storage room and terrace.
The terrace provides a magnificent panoramic view of the city, ideal for rest and relaxation at the end of the day.
Construction - brick.
Heating - gas and electricity.
The building has a clean look as the apartments are issued in the degree of completion according to BDS - plaster and plaster, armored entrance doors, high quality joinery, external thermal insulation, installed switches and sockets.
With a modern lift, there will be no need to worry about getting to the higher floors.
Stage of construction - Act 15, with expected Act 16 - m. October, 2025.
Parking in the building is solved with a semi underground floor, which has 9 parking spaces indoors and another 7 parking spaces outdoors.
Neighborhood Description:
Gabrovo's wide downtown offers the perfect combination of tranquility and urban living. Nearby you will find a variety of restaurants, shops and cultural attractions that provide a wide choice of entertainment and shopping opportunities.
Offer code: 0146
We at Mons Properties can assist you with the following services:
-Free credit mediation
from all banks
-Legal services
Монс Пропъртис има удоволствието да Ви представи за продажба тристаен апартамент в новострояща се луксозна сграда, кв. "Широк център", гр. Габрово.
Имотът е с площ от 140 м2.
Разпределението е както следва: коридор, две спални, всекидневна с кухненски бокс, два броя баня с тоалетна, склад и тераса.
Терасата предоставя прекрасна панорамна гледка към града, идеална за отдих и релакс в края на деня.
Строителство - тухла.
Отопление - газ и електричество.
Сградата е с изчистена визия като апартаментите се издават в степен на завършеност по БДС – на мазилка и замазка, блиндирани входни врати, висококачествена дограма, външна топлоизолация, монтирани ключове и контакти.
С модерния асансьор няма да има нужда да се притеснявате за изкачването на по-високите етажи.
Етап на строителство - Акт 15, с очакван Акт 16 - м. Октомври, 2025г.
Паркирането в сградата е решено с полуподземен етаж, който разполага с 9 паркоместа на закрито и още 7 паркоместа на открито.
Описание на квартала:
Широк център на Габрово предлага перфектната комбинация от спокойствие и градски живот. В близост ще откриете различни заведения, магазини и културни забележителности, които предоставят богат избор от възможности за развлечение и пазаруване.
Код на офертата: 0146
Ние от Монс Пропъртис можем да Ви съдействаме със следните услуги:
-Безплатно посредничество при кредитиране
от всички банки
-Юридически услуги
Two-bedroom apartment in a new luxury building, sq. "Broad Center", gr. Gabrovo
NO COMMISSION FROM BUYER!!!
Mons Properties is pleased to present for sale a two-bedroom apartment in a newly built luxury building, sq. "Shirock Center", Sofia, Bulgaria. The property is located in a new building, in the center of Broad Street.
The property has an area of 140 m2.
The layout is as follows: corridor, two bedrooms, living room with kitchenette, two bathroom with toilet, storage room and terrace.
The terrace provides a magnificent panoramic view of the city, ideal for rest and relaxation at the end of the day.
Construction - brick.
Heating - gas and electricity.
The building has a clean look as the apartments are issued in the degree of completion according to BDS - plaster and plaster, armored entrance doors, high quality joinery, external thermal insulation, installed switches and sockets.
With a modern lift, there will be no need to worry about getting to the higher floors.
Stage of construction - Act 15, with expected Act 16 - m. October, 2025.
Parking in the building is solved with a semi underground floor, which has 9 parking spaces indoors and another 7 parking spaces outdoors.
Neighborhood Description:
Gabrovo's wide downtown offers the perfect combination of tranquility and urban living. Nearby you will find a variety of restaurants, shops and cultural attractions that provide a wide choice of entertainment and shopping opportunities.
Offer code: 0146
We at Mons Properties can assist you with the following services:
-Free credit mediation
from all banks
-Legal services
ID: 144976085
Контакт с продавача
xxx xxx xxx