Бизнес
Цена на кв.м: 2106.17
Тип апартамент: 3 - стаен
Квадратура: 109 кв.м
Година на строителство: 2027 г.
Строителство: Тухла
Етаж: 2-ри
Брой етажи на сградата: 5
Последен етаж
Отопление: Електричество
Обзавеждане: Необзаведен
Състояние на сградата: Завършена
Преход: Без преход
Описание
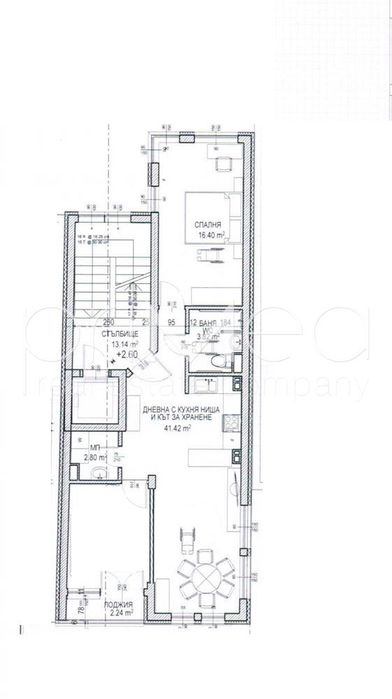
Примеа недвижими имоти предлага за продажба просторен тристаен апартамент в новострояща се сграда на метри от НХК и Александровска.
Сградата е разположена на тиха улица, с по един апартамент на етаж.
Апартаментът е на втори (първи жилищен) етаж с обща площ от 109,32 кв. м., състоящ се от всекидневна, две спални, баня с тоалетна, мокро помещение и тераса.
Възможност за разсрочено плащане.
Сградата е разположена на тиха улица, с по един апартамент на етаж.
Апартаментът е на втори (първи жилищен) етаж с обща площ от 109,32 кв. м., състоящ се от всекидневна, две спални, баня с тоалетна, мокро помещение и тераса.
Възможност за разсрочено плащане.
ID: 146335759
Контакт с продавача
xxx xxx xxx

