Бизнес
Цена на кв.м: 1053.23
Тип апартамент: 3 - стаен
Квадратура: 198 кв.м
Година на строителство: 2027 г.
Строителство: Тухла
Етаж: 1-ви
Брой етажи на сградата: 5
Последен етаж
Отопление: Прокарва се
Обзавеждане: Необзаведен
Състояние на сградата: В строеж
Преход: Без преход
Особености: асансьор, бартер, гараж, портиер, охрана, видеонаблюдение
Описание
Агенция за недвижими имоти LATIRA ESTATE има удоволствието да Ви представи 3-стаен апартамент в централната част на предпочитаният кв. Малинова долина!
*Топ локация!
*На метри от бул. Живко Сталев
*На пешеходно разстояние от НСА
*До бъдеща метростанция
*Автобусни спирки
*Детски площадки
*Магазини, аптеки, заведения!
*Строителство - тухла 2025 г.
*На шпакловка и замазка
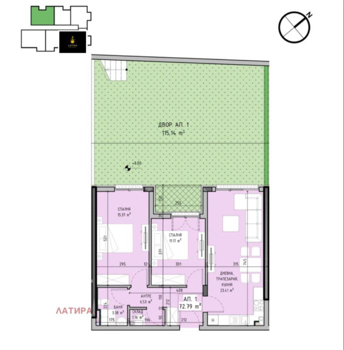
*Площ на апартамента 82.45 кв.м
*Собствен двор към апартамента 115.14 кв.м.
*Етаж 1 от 5
*Възможност за закупуване на гараж/паркомясто!
*В полите на Витоша с бърз и удобен достъп до Околовръстен път( директно по Живко Сталев), бул. Симеоновско шосе и новият изграждащ се път с директен излаз на Околовръстен път по ул. Тодор Недков! Сградата е ситуирана в централната част на кв. Малинова долина. Апартаментът се намира на пешеходно разстояние от одобреният проект на бъдещата метростанция!
*На пешеходно разстояние от магазини, аптеки и ресторанти! В непосредствена близост до новата детска градина! На топ локация в централната част на квартала!
Изключителна възможност, както за живеене, така и за инвестиция!
*Нова сграда, пред акт 14! Доказан инвеститор с високо качество на строителство!
Разпределение:
- просторно входно антре
- хол с трапезария и кухненски кът
- 2 спални
- баня
- мокро помещение/ склад
- собствен двор 115.14 кв.м
Агенцията предлага БЕЗПЛАТНО и ПРОФЕСИОНАЛНО съдействие, за своевременно осигуряване на ипотечни и/или потребителски кредити, при максимално изгодни условия за кредитополучателя.
Брокер: Анна Димитрова
*Топ локация!
*На метри от бул. Живко Сталев
*На пешеходно разстояние от НСА
*До бъдеща метростанция
*Автобусни спирки
*Детски площадки
*Магазини, аптеки, заведения!
*Строителство - тухла 2025 г.
*На шпакловка и замазка
*Площ на апартамента 82.45 кв.м
*Собствен двор към апартамента 115.14 кв.м.
*Етаж 1 от 5
*Възможност за закупуване на гараж/паркомясто!
*В полите на Витоша с бърз и удобен достъп до Околовръстен път( директно по Живко Сталев), бул. Симеоновско шосе и новият изграждащ се път с директен излаз на Околовръстен път по ул. Тодор Недков! Сградата е ситуирана в централната част на кв. Малинова долина. Апартаментът се намира на пешеходно разстояние от одобреният проект на бъдещата метростанция!
*На пешеходно разстояние от магазини, аптеки и ресторанти! В непосредствена близост до новата детска градина! На топ локация в централната част на квартала!
Изключителна възможност, както за живеене, така и за инвестиция!
*Нова сграда, пред акт 14! Доказан инвеститор с високо качество на строителство!
Разпределение:
- просторно входно антре
- хол с трапезария и кухненски кът
- 2 спални
- баня
- мокро помещение/ склад
- собствен двор 115.14 кв.м
Агенцията предлага БЕЗПЛАТНО и ПРОФЕСИОНАЛНО съдействие, за своевременно осигуряване на ипотечни и/или потребителски кредити, при максимално изгодни условия за кредитополучателя.
Брокер: Анна Димитрова
ID: 145359654
Контакт с продавача
xxx xxx xxx
Добавена 11 декември 2025 г.
3-стаен! Малинова долина!
407868.79 лв. / 208540 €
Потребител
Локация
гр. София, в.з. Драгалевци лифта
Област София-град