Бизнес
Цена на кв.м: 1727.27
Тип апартамент: 3 - стаен
Квадратура: 110 кв.м
Година на строителство: 2027 г.
Строителство: Тухла
Етаж: 2-ри
Брой етажи на сградата: 7
Последен етаж
Отопление: Електричество
Обзавеждане: Необзаведен
Състояние на сградата: Завършена
Преход: Без преход
Описание
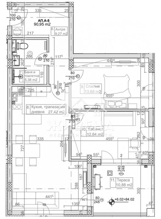
Агенция Живена Ви представя за продажба 3-стаен апартамент, в нов комплекс, в строеж, м-т Манастирски рид. Имотът е с обща площ - 110.12 кв.м, жилищна площ - 90.95 кв.м, със следното разпределение: коридор (9.27 кв.м), дневен тракт (27.42 кв.м), спални (12.84 кв.м и 13.66 кв.м), баня с тоалетна (5.38 кв.м) и тераса (10.88 кв.м). Намира се в гориста местност, на тихо и спокойно място с чист въздух, зеленина, простор и спираща дъха гледка към морето, близо до к.к. Слънчев ден и неговите плажове, също така до автобусни спирки, популярни туристически забележителности и др.
Комплексът е от затворен тип (с контролиран достъп с изградена чип система), състоящ се от две сгради. Предлага се разнообразие от апартаменти (общо 64 бр.), с различно функционално разпределение: 1-стайни апартаменти - на цени от 81 000 евро, 2-стайни - от 119 000 евро, 3-стайни - от 190 000 евро, 4-стайни - от 280 000 евро; паркоместа - от 10 000 евро и гаражи - от 15 000 евро. Проектирани са две подземни и и две надземни нива, а жилищната част ще започва от ниво партер и ще стига до 7-ми етаж. Панорамна гледка към морето ще се разкрива от почти всеки апартамент, вкл. от кота нула. Комплексът ще бъде разположен на парцел с площ от 4 дка, с много зелени площи, градина, алеи за разходка, детски кътове, зона за спорт и отдих, модерна архитектура с функционално разпределени помещения, удобна локация, с бърз и лесен достъп до всяка точка на града. Предвидено е внедряване на енергийно ефективни решения, които минимизират енергийната консумация чрез иновативни технологии, висококачествена изолация и монтаж на дограма от висок клас. Предлага се гъвкава схема на разсрочено плащане. Начало на строителството (започнато) 02.2025г. Завършване (с Акт 16) - Април 2027г.
За повече информация не се колебайте да се свържете с отговорният брокер. Агенция Живена извършва необходимите проверки на имота, който сте избрали, организира всички етапи на сделката до нейното финализиране. Оказваме съдействие за отпускане на банков кредит. Оферта № 7114
Комплексът е от затворен тип (с контролиран достъп с изградена чип система), състоящ се от две сгради. Предлага се разнообразие от апартаменти (общо 64 бр.), с различно функционално разпределение: 1-стайни апартаменти - на цени от 81 000 евро, 2-стайни - от 119 000 евро, 3-стайни - от 190 000 евро, 4-стайни - от 280 000 евро; паркоместа - от 10 000 евро и гаражи - от 15 000 евро. Проектирани са две подземни и и две надземни нива, а жилищната част ще започва от ниво партер и ще стига до 7-ми етаж. Панорамна гледка към морето ще се разкрива от почти всеки апартамент, вкл. от кота нула. Комплексът ще бъде разположен на парцел с площ от 4 дка, с много зелени площи, градина, алеи за разходка, детски кътове, зона за спорт и отдих, модерна архитектура с функционално разпределени помещения, удобна локация, с бърз и лесен достъп до всяка точка на града. Предвидено е внедряване на енергийно ефективни решения, които минимизират енергийната консумация чрез иновативни технологии, висококачествена изолация и монтаж на дограма от висок клас. Предлага се гъвкава схема на разсрочено плащане. Начало на строителството (започнато) 02.2025г. Завършване (с Акт 16) - Април 2027г.
За повече информация не се колебайте да се свържете с отговорният брокер. Агенция Живена извършва необходимите проверки на имота, който сте избрали, организира всички етапи на сделката до нейното финализиране. Оказваме съдействие за отпускане на банков кредит. Оферта № 7114
ID: 143074158
Контакт с продавача
xxx xxx xxx
Добавена 25 декември 2025 г.
3-стаен апартамент, в строеж, м-т Манастирски рид, 110 кв.м
371607.70 лв. / 190000 €
Потребител
Локация
м-т Манастирски рид
Област Варна