Бизнес
Цена на кв.м: 1480.25
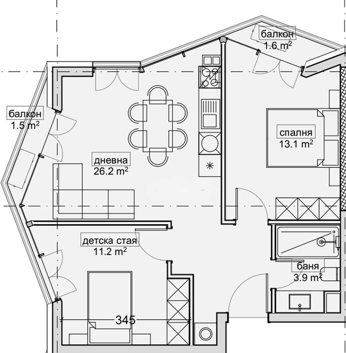
Тип апартамент: 3 - стаен
Квадратура: 81 кв.м
Година на строителство: 2027 г.
Строителство: Тухла
Етаж: 3-ти
Брой етажи на сградата: 10
Последен етаж
Отопление: Електричество
Обзавеждане: Необзаведен
Състояние на сградата: В строеж
Преход: Без преход
Особености: асансьор, паркинг
Описание
Агенция за недвижими имоти Lions Group предлага за продажба 3-стаен апартамент в новострояща се сграда, която се намира в кв. Владислав Варненчик.
Имотът се състои от входно антре, баня с тоалетна, две спални и дневна с кухненски бокс. Подходящ е, както за инвестиция, така и за отдаване под наем. Има възможност за закупуване на подземно паркомясто. Благоприятно югозападно изложение. Площта на жилището е 81кв.м, 1480 /кв.м.
Ще бъде издаден по БДС, като има възможност и за завършване ДО КЛЮЧ! Предвидени са и зелени площи около сградата.
В зависимост от избраната схема на плащане, може да се възползвате от до 7% отстъпка от крайната цена.
Има налични 1-стайни, 2-стайни и 3-стайни апартаменти.
За удобство на жителите в кв. Владислав Варненчик има поликлиника, училища, детски градини, парк, различни по вид магазини и големи търговски вериги. Кварталът се обслужва от множество автобусни линии, което осигурява достъп до всички части на града.
За повече информация и огледи: 08********22
Реф.: 14728
Брокер: Виктория Петрова
Цена на имота: 119 990
Район: Владислав Варненчик
Етаж: 3
Имотът се състои от входно антре, баня с тоалетна, две спални и дневна с кухненски бокс. Подходящ е, както за инвестиция, така и за отдаване под наем. Има възможност за закупуване на подземно паркомясто. Благоприятно югозападно изложение. Площта на жилището е 81кв.м, 1480 /кв.м.
Ще бъде издаден по БДС, като има възможност и за завършване ДО КЛЮЧ! Предвидени са и зелени площи около сградата.
В зависимост от избраната схема на плащане, може да се възползвате от до 7% отстъпка от крайната цена.
Има налични 1-стайни, 2-стайни и 3-стайни апартаменти.
За удобство на жителите в кв. Владислав Варненчик има поликлиника, училища, детски градини, парк, различни по вид магазини и големи търговски вериги. Кварталът се обслужва от множество автобусни линии, което осигурява достъп до всички части на града.
За повече информация и огледи: 08********22
Реф.: 14728
Брокер: Виктория Петрова
Цена на имота: 119 990
Район: Владислав Варненчик
Етаж: 3
ID: 146777173
Контакт с продавача
xxx xxx xxx
