Частна
Описание
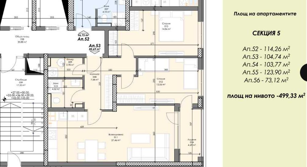
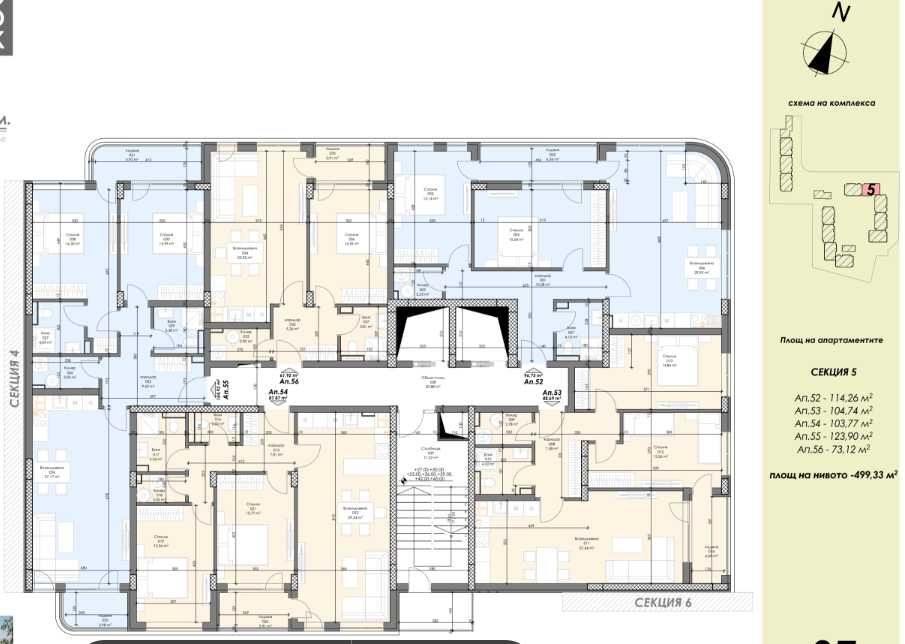
DHT Real Estate продава 3-стаен апартамент, със застроена площ от 88.69 кв.м., площ с общи части 104.74 кв.м., както и идеални части от парцела. Имотът се намира на 12-ти етаж в строяща се сграда в комплекс Охридско езеро парк, на етап акт 14. Комплексът е луксозен като се предвижда завършване в края на 2026 година на секция 5 от него. Имотът е със статут на апартамент, с източно изложение на трите стаи. Местоположението е изключително комуникативно, до спирки на автобуси, трамваи, тролеи, метростанции Опълченска и Константин Величков са на еднакво разстояние. В района има множество магазини, МОЛ София, МВР болница, Пирогов, налични училища, детски градини, парк Възраждане.
Апартаментът е вътрешен, компактен, на шпакловка и замазка, вторична продажба. Разпределението включва: коридор, просторна дневна с кухненски бокс, две спални, баня с WC, тераса лоджия, килер, допълнителен склад на подземно ниво със застроена площ от 4.11 кв.м. и общи части от подземните улици от 2.82 кв.м., както и идеални части от парцела. Отоплението и охлаждането ще е чрез подово отопление и термопомпа, както и климатици. Прозорци с алуминиева дограма с троен стъклопакет.
Изолация на сградата от Вентилируема фасада с 10см каширана каменно-минерална вата с пародифузна и ветрозащитна мембрана.
Общите части ще са стилни с модерен дизайн, чип достъп до вход и безшумни асансьори. Денонощна охрана. Поддръжката на сградите ще се осъществява от фирма, контролирана инвеститора. Ще се поддържат зелените площи, детските площадки и кътове за релаксация. Почистването, напояването и електричеството в целия комплекс. Цената за вход мениджъра ще е 0.85 лв./кв.м.
Имотът е чудесен за живеене или инвестиция и поради близостта до ВМА и стоматологичния факултет.
Възможност за подземни и надземни паркоместа от инвеститора.
Допълнителна информация на тел: 08*********11.
Апартаментът е вътрешен, компактен, на шпакловка и замазка, вторична продажба. Разпределението включва: коридор, просторна дневна с кухненски бокс, две спални, баня с WC, тераса лоджия, килер, допълнителен склад на подземно ниво със застроена площ от 4.11 кв.м. и общи части от подземните улици от 2.82 кв.м., както и идеални части от парцела. Отоплението и охлаждането ще е чрез подово отопление и термопомпа, както и климатици. Прозорци с алуминиева дограма с троен стъклопакет.
Изолация на сградата от Вентилируема фасада с 10см каширана каменно-минерална вата с пародифузна и ветрозащитна мембрана.
Общите части ще са стилни с модерен дизайн, чип достъп до вход и безшумни асансьори. Денонощна охрана. Поддръжката на сградите ще се осъществява от фирма, контролирана инвеститора. Ще се поддържат зелените площи, детските площадки и кътове за релаксация. Почистването, напояването и електричеството в целия комплекс. Цената за вход мениджъра ще е 0.85 лв./кв.м.
Имотът е чудесен за живеене или инвестиция и поради близостта до ВМА и стоматологичния факултет.
Възможност за подземни и надземни паркоместа от инвеститора.
Допълнителна информация на тел: 08*********11.
ID: 145811847
Контакт с продавача
xxx xxx xxx
Добавена 22 октомври 2025 г.
3-стаен апартамент Охридско езеро парк
294000 €
Потребител
Локация
гр. София, Сердика
Област София-град