Частна
Цена на кв.м: 1336.73
Тип апартамент: 3 - стаен
Квадратура: 98 кв.м
Година на строителство: 2026 г.
Строителство: Тухла
Етаж: 6-ти
Брой етажи на сградата: 6
Последен етаж
Отопление: Електричество
Обзавеждане: Необзаведен
Състояние на сградата: В строеж
Преход: Без преход
Особености: асансьор, гараж, портиер, охрана, саниран, видеонаблюдение
Описание
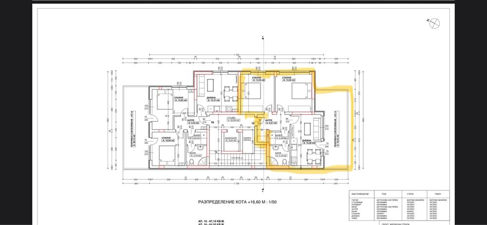
Продава се тристаен апартамент N:15 в новострояща се жилищна сграда. Апартамента е с чиста площ 67.1кв.м. + 12% общи части на 6 етаж (+16.6 кота) в модерна сграда в широк център.
Разпределението е:
Дневна 15.47 кв.м. + 20 кв.м тераса.
Спални 2 броя
Антре и коридор
Баня с тоалента
Тераса с изглаз от дневната и едната спалня.
Апартамента е изключително функционален с югоизточно изложение което осигурява естествена светлина през целия ден.
Сградата ще бъде изпълнена с тухли Виненбергер, 5 камерна дограма и троен стъклопакет.15 см топлоизолация.
Гараж N4 на ниво -1 от 20.3 кв.м с монтирана гаражна врата достъпа до гаража е с платформа асаньор.
Апартамента се издавава на ПОД-циментова замаска, Стени и тавани- шпакловка и латекс, дограма 5 кам PVC, входна врата Блиндирана.
Локацията е на пешеходно разтояние от училище, детски градини, автогара, жп гара, детски градини и хипермаркети.
Апартамента е 75кв (с включени общи части 12%) , гаража е 22.8 кв (с вкл.общ части) : ОБЩО 98 кв.м
Акт 14 до Юли 2026
Акт 15 до Декември 2026
Акт 16 Март 2027
ЦЕНАТА Е ОБЩА ЗА ВСИЧКО ПО ОТДЕЛНО НЕ СЕ ПРОДАВА.
Разпределението е:
Дневна 15.47 кв.м. + 20 кв.м тераса.
Спални 2 броя
Антре и коридор
Баня с тоалента
Тераса с изглаз от дневната и едната спалня.
Апартамента е изключително функционален с югоизточно изложение което осигурява естествена светлина през целия ден.
Сградата ще бъде изпълнена с тухли Виненбергер, 5 камерна дограма и троен стъклопакет.15 см топлоизолация.
Гараж N4 на ниво -1 от 20.3 кв.м с монтирана гаражна врата достъпа до гаража е с платформа асаньор.
Апартамента се издавава на ПОД-циментова замаска, Стени и тавани- шпакловка и латекс, дограма 5 кам PVC, входна врата Блиндирана.
Локацията е на пешеходно разтояние от училище, детски градини, автогара, жп гара, детски градини и хипермаркети.
Апартамента е 75кв (с включени общи части 12%) , гаража е 22.8 кв (с вкл.общ части) : ОБЩО 98 кв.м
Акт 14 до Юли 2026
Акт 15 до Декември 2026
Акт 16 Март 2027
ЦЕНАТА Е ОБЩА ЗА ВСИЧКО ПО ОТДЕЛНО НЕ СЕ ПРОДАВА.
ID: 146023990
Контакт с продавача
xxx xxx xxx
Добавена 08 ноември 2025 г.
3-стаен апартамент +гараж 20кв + тераса 20 кв
131000 €
Потребител
Локация
гр. Благоевград, Запад
Област Благоевград