Бизнес
Цена на кв.м: 1263.41
Тип апартамент: 2 - стаен
Квадратура: 82 кв.м
Година на строителство: 2026 г.
Строителство: Тухла
Етаж: 1-ви
Брой етажи на сградата: 4
Последен етаж
Отопление: Електричество
Обзавеждане: Необзаведен
Състояние на сградата: В строеж
Преход: Без преход
Особености: асансьор, гараж, лизинг, паркинг, саниран, видеонаблюдение
Описание
Предлагаме ви за продажба двустаен апартамент в нова жилищна сграда, която предстои да бъде започната, разположена в предпочитан и развиващ се район на Виница, Варна.
Апартаментът е среден с функционално разпределение и е подходящ както за лично ползване, така и за инвестиция.
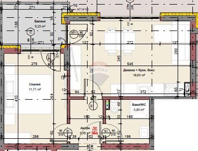
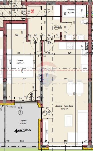
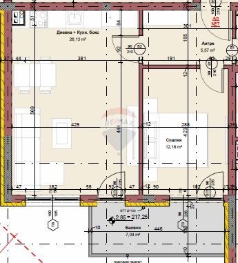
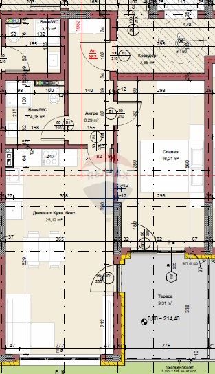
Разпределение:
-входно антре
-дневна с кухненска част
-спалня
-баня с тоалетна
-балкон
-изба
Жилището ще бъде издадено по БДС.
Проектът ще бъде реализиран от доказан строител с опит и реализирани проекти, което е гаранция за качествено строителство, модерна визия и добре организирани общи части.
Предимства на имота:
-нов проект възможност за покупка на ранен етап
-строителство от доказан инвеститор
-спокойна жилищна среда
-функционално разпределение
-подходящ както за живеене, така и за инвестиция
Към имота има възможност за закупуване на паркомясто открито или закрито, което осигурява допълнително удобство и комфорт за бъдещите собственици. Цените на откритите паркоместа са 8000 евро, а на подземните 12000 и 14000 евро.
Сградата е разположена в тих и озеленен район на Виница, Варна, предпочитан за целогодишно живеене. Районът предлага спокойна жилищна среда, чист въздух и същевременно удобен достъп до основни пътни артерии, магазини и други ежедневни удобства.
В сградата се предлагат и други свободни двустайни и тристайни апартаменти, което дава възможност за избор на жилище според нуждите и предпочитанията на бъдещите собственици.
Възможност за покупка на имот на ранен етап от строителството, което дава предимство при избора на етаж, изложение и разпределение.
За повече информация относно наличните апартаменти в сградата, свържете се с мен.
Апартаментът е среден с функционално разпределение и е подходящ както за лично ползване, така и за инвестиция.
Разпределение:
-входно антре
-дневна с кухненска част
-спалня
-баня с тоалетна
-балкон
-изба
Жилището ще бъде издадено по БДС.
Проектът ще бъде реализиран от доказан строител с опит и реализирани проекти, което е гаранция за качествено строителство, модерна визия и добре организирани общи части.
Предимства на имота:
-нов проект възможност за покупка на ранен етап
-строителство от доказан инвеститор
-спокойна жилищна среда
-функционално разпределение
-подходящ както за живеене, така и за инвестиция
Към имота има възможност за закупуване на паркомясто открито или закрито, което осигурява допълнително удобство и комфорт за бъдещите собственици. Цените на откритите паркоместа са 8000 евро, а на подземните 12000 и 14000 евро.
Сградата е разположена в тих и озеленен район на Виница, Варна, предпочитан за целогодишно живеене. Районът предлага спокойна жилищна среда, чист въздух и същевременно удобен достъп до основни пътни артерии, магазини и други ежедневни удобства.
В сградата се предлагат и други свободни двустайни и тристайни апартаменти, което дава възможност за избор на жилище според нуждите и предпочитанията на бъдещите собственици.
Възможност за покупка на имот на ранен етап от строителството, което дава предимство при избора на етаж, изложение и разпределение.
За повече информация относно наличните апартаменти в сградата, свържете се с мен.
ID: 147306882
Контакт с продавача
xxx xxx xxx

