Бизнес
Цена на кв.м: 35.94
Тип апартамент: 2 - стаен
Квадратура: 7235 кв.м
Година на строителство: 2025 г.
Строителство: Тухла
Етаж: 2-ри
Брой етажи на сградата: 6
Последен етаж
Отопление: Електричество
Обзавеждане: Необзаведен
Състояние на сградата: Завършена
Преход: Без преход
Описание
ЕКСКЛУЗИВНО ОТ ИМОТИКС И ИВЕДА ИМОТИ!
Двустаен апартамент в новострояща се сграда – ТОП локация: район Нептун, Варна!
Представяме ви изключителна възможност за покупка на имот в модерна жилищна сграда, разположена на ул. „Хаджи Стамат“ №9 – една от най-предпочитаните и удобни локации в сърцето на град Варна.
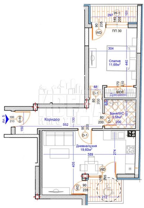
Апартамент №2 – двустаен, разположен на 2-ри етаж, с площ от 72,35 кв.м. Разпределението е функционално и практично, осигуряващо максимален комфорт. Дневна с трапезария - 19,60 кв.м, спалня- 13,33кв.м.м., коридор, баня с тоалет- 3,58кв.м., тераса. Етап на строителство: Акт 14. За ваше улеснение прилагаме схема на имота.
Сградата впечатлява с модерна архитектура и естетика – топли фасадни цветове, стилни линии и качествени материали. Проектът включва 13 апартамента (двустайни, тристайни и четиристайни), както и 8 гаража и 2 паркоместа, което осигурява удобство за бъдещите собственици.
Строителят е с доказан опит и безупречна репутация. Жилищата се предлагат по БДС стандарт, с възможност за завършване „до ключ“ според вашите предпочитания. Общите части ще бъдат завършени луксозно, с внимание към всеки детайл.
Налични гаражи и паркоместа с цени от 41000 евро.
Гъвкави схеми на плащане!
Има и възможност за банково финансиране.
Локация: в непосредствена близост до Централна поща, Община Варна, училища, детски градини, магазини и спортни съоръжения – всичко необходимо е на една ръка разстояние.
Ако търсите имот, който съчетава качество, отлична локация и инвестиционен потенциал – това предложение е за Вас!
За повече информация и огледи – обадете се и цитирайте референтен номер 22003.
Двустаен апартамент в новострояща се сграда – ТОП локация: район Нептун, Варна!
Представяме ви изключителна възможност за покупка на имот в модерна жилищна сграда, разположена на ул. „Хаджи Стамат“ №9 – една от най-предпочитаните и удобни локации в сърцето на град Варна.
Апартамент №2 – двустаен, разположен на 2-ри етаж, с площ от 72,35 кв.м. Разпределението е функционално и практично, осигуряващо максимален комфорт. Дневна с трапезария - 19,60 кв.м, спалня- 13,33кв.м.м., коридор, баня с тоалет- 3,58кв.м., тераса. Етап на строителство: Акт 14. За ваше улеснение прилагаме схема на имота.
Сградата впечатлява с модерна архитектура и естетика – топли фасадни цветове, стилни линии и качествени материали. Проектът включва 13 апартамента (двустайни, тристайни и четиристайни), както и 8 гаража и 2 паркоместа, което осигурява удобство за бъдещите собственици.
Строителят е с доказан опит и безупречна репутация. Жилищата се предлагат по БДС стандарт, с възможност за завършване „до ключ“ според вашите предпочитания. Общите части ще бъдат завършени луксозно, с внимание към всеки детайл.
Налични гаражи и паркоместа с цени от 41000 евро.
Гъвкави схеми на плащане!
Има и възможност за банково финансиране.
Локация: в непосредствена близост до Централна поща, Община Варна, училища, детски градини, магазини и спортни съоръжения – всичко необходимо е на една ръка разстояние.
Ако търсите имот, който съчетава качество, отлична локация и инвестиционен потенциал – това предложение е за Вас!
За повече информация и огледи – обадете се и цитирайте референтен номер 22003.
ID: 144427274
Контакт с продавача
xxx xxx xxx

