Бизнес
Цена на кв.м: 1465.52
Тип апартамент: 2 - стаен
Квадратура: 58 кв.м
Година на строителство: 2027 г.
Строителство: Тухла
Етаж: 3-ти
Брой етажи на сградата: 4
Отопление: Електричество
Обзавеждане: Необзаведен
Състояние на сградата: Завършена
Преход: Без преход
Описание
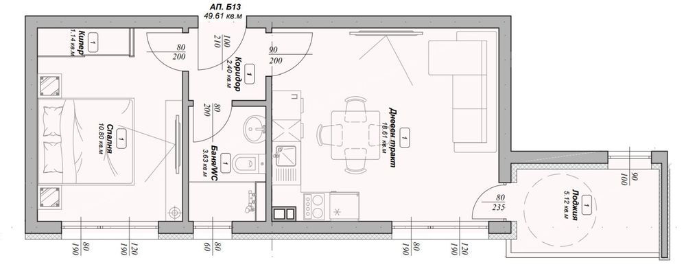
НОВА ЛУКСОЗНА СГРАДА !!! РАЗСРОЧЕНО ПЛАЩАНЕ !!! ИЗБОР НА АПАРТАМЕНТИ И ЕТАЖИ !!! ОТЛИЧНА ЛОКАЦИЯ !!! ВЪЗМОЖНОСТ ЗА ПАРКОМЯСТО !!!Нова Хоум Ви предлага за продажба двустаен апартамент с площ от 57 кв.м., разположен в новострояща се модерна сграда в предпочитания за живеене район местност Пчелина, гр. Варна.Разпределение :Дневен тракт с кухненски кът - 18,6 кв.м. Тераса 5 кв.м.Спалня 10,8 кв.м. Баня с тоалетна 3,63 кв.м.Входно антре 2,4 кв.м.КилерАпартаментът ще бъде завършен по БДС с монтирана входна врата, изградени ВиК и ел.инсталации, отлично завършени общи части.Към имота има възможност за закупуване на паркомясто.Локацията на сградата е изключително удобна в непосредствена близост до главни пътни артерии, автобусни спирки, търговски обекти и супермаркети, детска градина, училище, което прави имота отличен избор както за постоянно живеене, така и за инвестиция с цел отдаване под наем.Нова Хоум съдейства на своите клиенти до нотариалното изповядване на сделката, за отпускане на кредит с преференциални условия към всички водещи банки на пазара, както и за ремонтни и довършителни дейности /завършване до ключ/ на преференциални цени.За повече информация, коментари и огледи: Живко Желязков 08*********52 (телефон от 8:30 до 21:30), (viber и whatsapp +35***********52 денонощно).За да разгледате още актуални оферти в гр.Варна, можете да посетите сайта на агенцията - www.novahome.bg
ID: 147105221
Контакт с продавача
xxx xxx xxx
