Бизнес
Цена на кв.м: 1921.88
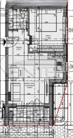
Тип апартамент: 2 - стаен
Квадратура: 64 кв.м
Година на строителство: 2027 г.
Строителство: Тухла
Етаж: 1-ви
Брой етажи на сградата: 4
Последен етаж
Отопление: Електричество
Обзавеждане: Необзаведен
Състояние на сградата: В строеж
Преход: Без преход
Описание
НОВА БУТИКОВА СГРАДА!
НЕСКРИВАЕМА МОРСКА ПАНОРАМА!
ПАНОРАМА от кота 0!
МЕСТОПОЛОЖЕНИЕ: Сграда със съвременна архитектура, разположена на тиха улица с панорамна гледка към морето в квартал Галата.
ЕНТЕР ИМОТИ предлага на вашето внимание двустаен апартамент в новострояща се бутикова сграда. РАЗПРЕДЕЛЕНИЕ: На обща площ от 64,41 кв.м. са разположени дневен тракт с излаз на тераса, спалня, комбиниран санитарен възел. СГРАДА: Изгражда се с високи стандарти за качество, устойчивост и комфорт. Проектирана с мисъл за съвременния начин на живот. Четири етажна сграда с 12 апартамента, гаражи и паркоместа. Пространството около сградата ще бъде оградено и озеленено, ще бъде изградена барбекю зона за общо ползване от живущите в сградата. Общите части ще бъдат луксозно изпълнени, от входната врата се влиза в просторно фоайе, висок клас асансьор. Топло и хидро изолации, PVC дограма Kömmerling. Апартаментите се издават по БДС, като има възможност за извършване на довършителни работи срещу допълнително заплащане.
В сградата се предлагат двустайни и тристайни апартаменти с различна квадратура и избор на етаж. Инвеститорът предлага гъвкави схеми на плащане. Очаквано разрешение за ползване в началото на 2027 година.
НЕСКРИВАЕМА МОРСКА ПАНОРАМА!
ПАНОРАМА от кота 0!
МЕСТОПОЛОЖЕНИЕ: Сграда със съвременна архитектура, разположена на тиха улица с панорамна гледка към морето в квартал Галата.
ЕНТЕР ИМОТИ предлага на вашето внимание двустаен апартамент в новострояща се бутикова сграда. РАЗПРЕДЕЛЕНИЕ: На обща площ от 64,41 кв.м. са разположени дневен тракт с излаз на тераса, спалня, комбиниран санитарен възел. СГРАДА: Изгражда се с високи стандарти за качество, устойчивост и комфорт. Проектирана с мисъл за съвременния начин на живот. Четири етажна сграда с 12 апартамента, гаражи и паркоместа. Пространството около сградата ще бъде оградено и озеленено, ще бъде изградена барбекю зона за общо ползване от живущите в сградата. Общите части ще бъдат луксозно изпълнени, от входната врата се влиза в просторно фоайе, висок клас асансьор. Топло и хидро изолации, PVC дограма Kömmerling. Апартаментите се издават по БДС, като има възможност за извършване на довършителни работи срещу допълнително заплащане.
В сградата се предлагат двустайни и тристайни апартаменти с различна квадратура и избор на етаж. Инвеститорът предлага гъвкави схеми на плащане. Очаквано разрешение за ползване в началото на 2027 година.
ID: 146143984
Контакт с продавача
xxx xxx xxx
Добавена 18 ноември 2025 г.
2-стаен в Варна-Галата площ 64 цена 123000
123000 €
Потребител
Локация
гр. Варна, Галата
Област Варна
За този потребител