Бизнес
Цена на кв.м: 1816.90
Тип апартамент: 2 - стаен
Квадратура: 71 кв.м
Година на строителство: 2026 г.
Строителство: Тухла
Етаж: 8-ми
Брой етажи на сградата: 10
Последен етаж
Отопление: Електричество
Обзавеждане: Необзаведен
Състояние на сградата: Завършена
Преход: Без преход
Описание
International Real Estates (IRE) представя:
Двустаен апартамент в нов жилищен комплекс от затворен тип с Акт 14, разположен в зелена и тиха част на Варна, кв. Аспарухово. Имотът е на осми жилищен етаж от десет и предлага прекрасна, нескриваема панорама към морето и гората.
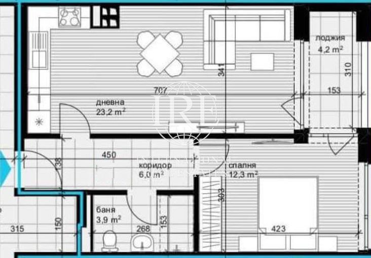
Разпределение:
Коридор, просторна дневна с обособени зони за кухня и трапезария, светла спалня, обща тераса с достъп от двете стаи, баня с тоалет. Функционално разпределение с източно/югоизточно изложение.
Характеристики и предимства:
Локация: Изключително тих и спокоен район, съчетаващ удобствата на градското живеене с близостта до природата. На пешеходно разстояние от Парк Аспарухово и плажната ивица.
Сграда и Комплекс: Комплексът е от затворен тип, състоящ се от четири сгради сред просторна паркова среда (9 000 кв.м.). Качествено строителство с изчистена, съвременна архитектура.
Завършеност: Имотът се издава по БДС.
Фасада и Дограма: Високоефективна топлоизолационна система, висококачествена силиконова мазилка, 7-камерна дограма с троен стъклопакет (четири сезона + бяло + К стъкло) с газ аргон.
Площ: 70.99 кв.м (обща).
Паркомясто: Възможност за закупуване на голямо подземно паркомясто.
Допълнително паркомясто: 18 000 евро.
За повече информация и организиране на оглед, моля свържете се с нас на посочения телефон и цитирайте код на обявата: 365
International Real Estates предлага пълно съдействие при покупка, включително безплатна консултация и подкрепа при банково кредитиране – избор на най-добри условия и съдействие до финализиране на сделката.
Двустаен апартамент в нов жилищен комплекс от затворен тип с Акт 14, разположен в зелена и тиха част на Варна, кв. Аспарухово. Имотът е на осми жилищен етаж от десет и предлага прекрасна, нескриваема панорама към морето и гората.
Разпределение:
Коридор, просторна дневна с обособени зони за кухня и трапезария, светла спалня, обща тераса с достъп от двете стаи, баня с тоалет. Функционално разпределение с източно/югоизточно изложение.
Характеристики и предимства:
Локация: Изключително тих и спокоен район, съчетаващ удобствата на градското живеене с близостта до природата. На пешеходно разстояние от Парк Аспарухово и плажната ивица.
Сграда и Комплекс: Комплексът е от затворен тип, състоящ се от четири сгради сред просторна паркова среда (9 000 кв.м.). Качествено строителство с изчистена, съвременна архитектура.
Завършеност: Имотът се издава по БДС.
Фасада и Дограма: Високоефективна топлоизолационна система, висококачествена силиконова мазилка, 7-камерна дограма с троен стъклопакет (четири сезона + бяло + К стъкло) с газ аргон.
Площ: 70.99 кв.м (обща).
Паркомясто: Възможност за закупуване на голямо подземно паркомясто.
Допълнително паркомясто: 18 000 евро.
За повече информация и организиране на оглед, моля свържете се с нас на посочения телефон и цитирайте код на обявата: 365
International Real Estates предлага пълно съдействие при покупка, включително безплатна консултация и подкрепа при банково кредитиране – избор на най-добри условия и съдействие до финализиране на сделката.
ID: 145961930
Контакт с продавача
xxx xxx xxx

