Бизнес
Цена на кв.м: 2532.60
Тип апартамент: 2 - стаен
Квадратура: 125 кв.м
Година на строителство: 2028 г.
Строителство: Тухла
Етаж: 2-ри
Брой етажи на сградата: 12
Последен етаж
Отопление: ТЕЦ
Обзавеждане: Необзаведен
Състояние на сградата: Завършена
Преход: Без преход
Описание
Предлагаме двустаен апартамент БЕЗ КОМИСИОННА в централната част на София- зона Б18. В близост до сградата има различни типове транспорт.
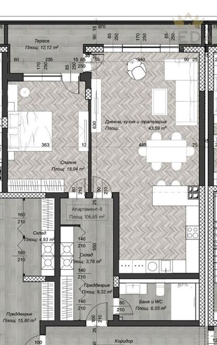
Апартамента е със застроена площ 107 кв.м и разполага с дневна с трапезария и кухненски бокс, спалня, баня, голям балкон и складово помещение.
Фасадата е с изчистени форми. Използвани са фасадни декоративни елементи, които подчертават обемите. Конструкцията на сградата е монолитна стоманобетонова с външни зидове от 25см тухли + 10см топлоизолация и преградни стени от 25 или 12см тухли. Вътрешните прегради и заграждения на инсталациите в баните са от гипсокартон.
Терасите са предвидени с ажурни и плътни парапети с височина от мин. 120см от готов под. Заложени са необходимите топло и хидроизолации съобразно действащите нормативи.
Създаването на общо пространство в градска среда е предизвикателство при осигуряването му по функционален начин, което да донесе допълнително за уютна обстановка и качеството на живот. Предвидена е богато озеленена общодостъпна покривна тераса в акцентната зона на сградата – зоната на пробива.
Предимства на комплекса:
Отлична локация
Функционални и светли жилища
Луксозни общи части
Озеленена покривна градина
Сигурност – контрол на достъпа
Използвани материали:
Фасадното остъкляване осигурява максимално естествено осветление във всяко жилищно помещение. Немски алуминиеви профил с троен стъклопакет Schüco
Зидария от керамични тухли с дебелина 25см и 12см от Wienerberger
Входните пространства са маркирани с декоративна рамка с облицовка от камък
Партерът е с финиш от еталбонд, който ествствено преминава през декоративните слънцезащитни елементи във височина до декоративния профил, който рамкира обществената зона
Външна мазилка – хоризонтали от светъл цвят - за бордовете на терасите и парапетите; тъмен цвят – по цялата фасада във вътрешността
Тъмен лакобел – който допълнително подчертава вертикалите
Декоративни решетки
Предпазен парапет от композитен материал с мин H=120см от готов под
Подземен паркинг:
В сутерена са разположени 38бр. паркоместа. Предвижда се автоматизирана система за достъп с дистанционно управление. Стълбищните ядра са отделени от зоната за автомобили с пожарозащитни врати. Предвидени са технически и складови помещения на това ниво.
Партерен етаж:
Разположени са 18бр. покрити и 7 бр. открити паркоместа., като до тях се стига от автомобилните достъпи от бул.„инж. Иван Иванов“ от запад.
Стълбищните ядра са отделени от зоната за автомобили с пожарозащитни врати. Във входните фоайета са отделени общи помещения и помещения за охранител. Предвижда се автоматизирана система за контрол на достъпа. Предвидени са също и складови помещения на това ниво.
Схема на плащане: 20/80
код на оферта: 2903
За повече информация Емилия Емилова:08******48
Апартамента е със застроена площ 107 кв.м и разполага с дневна с трапезария и кухненски бокс, спалня, баня, голям балкон и складово помещение.
Фасадата е с изчистени форми. Използвани са фасадни декоративни елементи, които подчертават обемите. Конструкцията на сградата е монолитна стоманобетонова с външни зидове от 25см тухли + 10см топлоизолация и преградни стени от 25 или 12см тухли. Вътрешните прегради и заграждения на инсталациите в баните са от гипсокартон.
Терасите са предвидени с ажурни и плътни парапети с височина от мин. 120см от готов под. Заложени са необходимите топло и хидроизолации съобразно действащите нормативи.
Създаването на общо пространство в градска среда е предизвикателство при осигуряването му по функционален начин, което да донесе допълнително за уютна обстановка и качеството на живот. Предвидена е богато озеленена общодостъпна покривна тераса в акцентната зона на сградата – зоната на пробива.
Предимства на комплекса:
Отлична локация
Функционални и светли жилища
Луксозни общи части
Озеленена покривна градина
Сигурност – контрол на достъпа
Използвани материали:
Фасадното остъкляване осигурява максимално естествено осветление във всяко жилищно помещение. Немски алуминиеви профил с троен стъклопакет Schüco
Зидария от керамични тухли с дебелина 25см и 12см от Wienerberger
Входните пространства са маркирани с декоративна рамка с облицовка от камък
Партерът е с финиш от еталбонд, който ествствено преминава през декоративните слънцезащитни елементи във височина до декоративния профил, който рамкира обществената зона
Външна мазилка – хоризонтали от светъл цвят - за бордовете на терасите и парапетите; тъмен цвят – по цялата фасада във вътрешността
Тъмен лакобел – който допълнително подчертава вертикалите
Декоративни решетки
Предпазен парапет от композитен материал с мин H=120см от готов под
Подземен паркинг:
В сутерена са разположени 38бр. паркоместа. Предвижда се автоматизирана система за достъп с дистанционно управление. Стълбищните ядра са отделени от зоната за автомобили с пожарозащитни врати. Предвидени са технически и складови помещения на това ниво.
Партерен етаж:
Разположени са 18бр. покрити и 7 бр. открити паркоместа., като до тях се стига от автомобилните достъпи от бул.„инж. Иван Иванов“ от запад.
Стълбищните ядра са отделени от зоната за автомобили с пожарозащитни врати. Във входните фоайета са отделени общи помещения и помещения за охранител. Предвижда се автоматизирана система за контрол на достъпа. Предвидени са също и складови помещения на това ниво.
Схема на плащане: 20/80
код на оферта: 2903
За повече информация Емилия Емилова:08******48
ID: 147079996
Контакт с продавача
xxx xxx xxx
Добавена 18 февруари 2026 г.
2-стаен в София-Зона Б18 площ 125 цена 316575
619166.88 лв. / 316575 €
Потребител
Локация
гр. София, Зона Б-18
Област София-град