Бизнес
Цена на кв.м: 2590.91
Тип апартамент: 2 - стаен
Квадратура: 88 кв.м
Година на строителство: 2024 г.
Строителство: Тухла
Етаж: 3-ти
Брой етажи на сградата: 5
Последен етаж
Отопление: Без отопление
Обзавеждане: Необзаведен
Състояние на сградата: Завършена
Преход: Без преход
Описание
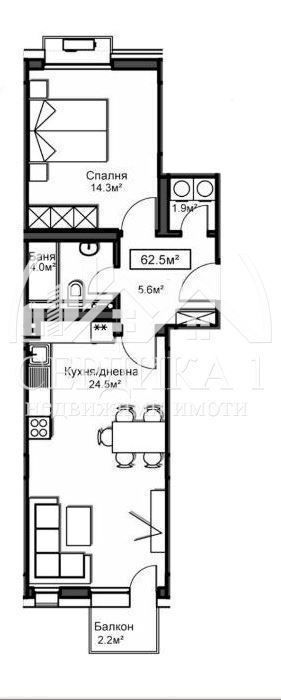
Имоти Сердика 1 Ви представя двустаен апартамент с в кв. Красно село, гр. София. Сградата е с АКТ 16!. Намира се в затворен комплекс на 5 мин. пешеходно разстояние от метростанция Красно село и в близост до множество спирки на градски транспорт, супермаркети, училища и детски градини. Жилището е с площ от 88 кв.м., като чистата му площ е 62, 5 кв.м. Намира се на трети етаж в сграда 'М' и е със следното разпределение: антремокро помещение, баня със тоалетна, всекидневна с кухненски бокс и излаз на източна тераса, спалня. Възможност за закупуване на подземно парко място с цена от 35 000евро.За оглед на това и други атрактивни предложения, не се колебайте да ни потърсите на посочения телефон за връзка. В случай, че не ви отговорим на момента, ще ви върнем обаждане при първа възможност. Предлагаме безплатно съдействие за отпускане на ипотечни и потребителски кредити. Преференциални условия! Още актуални оферти за наеми и продажби може да намерите в нашия сайт: www.serdika1.bg. ID: 21335 - 41130
ID: 145961089
Контакт с продавача
xxx xxx xxx
Добавена 03 ноември 2025 г.
2-стаен в София-Красно Село
228000 €
Потребител
Локация
гр. София, Красно село
Област София-град
За този потребител
