Бизнес
Цена на кв.м: 1746.27
Тип апартамент: 2 - стаен
Квадратура: 67 кв.м
Година на строителство: 2025 г.
Строителство: Тухла
Етаж: 7-ми
Брой етажи на сградата: 9
Последен етаж
Отопление: Електричество
Обзавеждане: Необзаведен
Състояние на сградата: Завършена
Преход: Без преход
Описание
Описание
Нова Цена! Имоти Премиер ви предлага Двустаен Апартамент в Evea Residence
Нова жилищна сграда без такса поддръжка.
EVEA RESIDENCE съвременен жилищен проект в ж.к. Изгрев, гр. Бургас
В непосредствена близост до Метро, Мол Плаза, Кауфланд и Лидл, с удобен достъп до основните пътни артерии и изцяло нова инфраструктура.
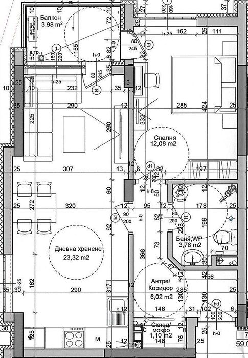
Представеният имот е с обща площ 67 кв.м (60 кв.м чиста площ) и се състои от:
-Светла всекидневна с кухненски бокс
-Спалня,
-Баня с тоалетна
-Мокро помещение
-Антре и тераса
Възможност за закупуване на паркомясто
Висококачествено строителство:
Фасада: тухла Wienerberger, топлоизолация Baumit (EPS/XPS 10 см), структурна полимерна мазилка;
Общи части: гранитогрес, хидравлични асансьори, модерни парапети;
Апартаменти: шпакловани и грундирани стени, циментова замазка, противовзломни входни врати, енергоефективна дограма с четири сезона стъклопакет;
Инсталации: изцяло изградени ел., ВиК, интернет, TV, домофонна и звънчева система;
Балкони: гранитогрес, хидроизолация и осветление.
За огледи и допълнителна информация цитирайте кода : 375490
Нова Цена! Имоти Премиер ви предлага Двустаен Апартамент в Evea Residence
Нова жилищна сграда без такса поддръжка.
EVEA RESIDENCE съвременен жилищен проект в ж.к. Изгрев, гр. Бургас
В непосредствена близост до Метро, Мол Плаза, Кауфланд и Лидл, с удобен достъп до основните пътни артерии и изцяло нова инфраструктура.
Представеният имот е с обща площ 67 кв.м (60 кв.м чиста площ) и се състои от:
-Светла всекидневна с кухненски бокс
-Спалня,
-Баня с тоалетна
-Мокро помещение
-Антре и тераса
Възможност за закупуване на паркомясто
Висококачествено строителство:
Фасада: тухла Wienerberger, топлоизолация Baumit (EPS/XPS 10 см), структурна полимерна мазилка;
Общи части: гранитогрес, хидравлични асансьори, модерни парапети;
Апартаменти: шпакловани и грундирани стени, циментова замазка, противовзломни входни врати, енергоефективна дограма с четири сезона стъклопакет;
Инсталации: изцяло изградени ел., ВиК, интернет, TV, домофонна и звънчева система;
Балкони: гранитогрес, хидроизолация и осветление.
За огледи и допълнителна информация цитирайте кода : 375490
ID: 145853482
Контакт с продавача
xxx xxx xxx

