Бизнес
Цена на кв.м: 386.36
Брой етажи на сградата: 2
Квадратура: 220 кв.м
Квадратура на двора: 2500 кв.м
Година на строителство: 1998 г.
Строителство: Тухла
Отопление: Електричество
Състояние на сградата: Завършена
Особености: паркинг
OLX Доставка
Описание
Предлаганият имот представлява къща с голям двор в китното село Престой на 5 км. от град Трявна. Трявна е чудесна отправна точка за много дестинации - Дряново, Дряновски манастир, Пещерата бачо Киро, еко пътеките над манастира, Боженци и околните гори - прекрасно място за разходки, Габрово и Етъра. Районът е много подходящ за туризъм.
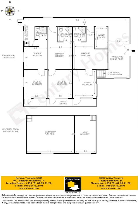
Жилищната площ на къщата е 220 кв.м. На първия етаж са разположени трапезария с кухненски бокс, коридор, 6 спални с 3 бани и тоалетни, 3 тераси. На приземен етаж има маза и билярдна.
Интериорът разполага с дървени дограми, врати, подовете са с теракот.
Имотът е е снабден с електричество, вода и до него има целогодишен достъп по асфалтов път. Дворното място е с площ от 2 500 кв.м. Към имота има навес, подходящ за барбекю, и площадка за тенисен корт.
Районът предоставя панорамни гледки, отлични условия за лов и риболов.
Реф. номер:180052
Жилищната площ на къщата е 220 кв.м. На първия етаж са разположени трапезария с кухненски бокс, коридор, 6 спални с 3 бани и тоалетни, 3 тераси. На приземен етаж има маза и билярдна.
Интериорът разполага с дървени дограми, врати, подовете са с теракот.
Имотът е е снабден с електричество, вода и до него има целогодишен достъп по асфалтов път. Дворното място е с площ от 2 500 кв.м. Към имота има навес, подходящ за барбекю, и площадка за тенисен корт.
Районът предоставя панорамни гледки, отлични условия за лов и риболов.
Реф. номер:180052
ID: 142646665
Контакт с продавача
xxx xxx xxx

