Бизнес
Цена на кв.м: 450
Брой етажи на сградата: 1
Квадратура: 100 кв.м
Квадратура на двора: 480 кв.м
Година на строителство: 1950 г.
Строителство: Тухла
Отопление: Печка, камина
Състояние на сградата: Завършена
Особености: гараж, канализация
Описание
Просторна тухлена къща в с. Добромирка, което е на 14 км от Севлиево и на 30 км западно от Велико Търново. Селото е в близост до язовир и река, което прави района подходящ за риболов и туризъм.
Къщата е построена през 1950 год., добре поддържана и наскоро реновирана.
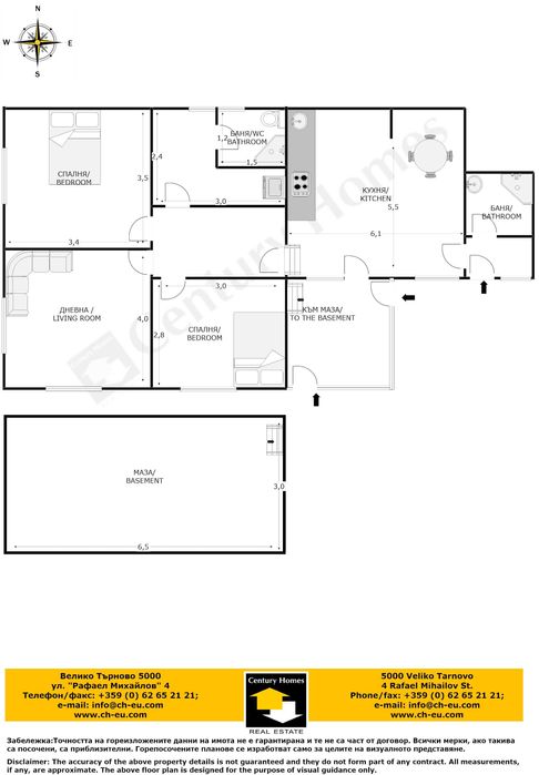
Жилището се простира на 100 кв.м. жилищна площ, състои от остъклена веранда, просторна трапезария с кухня на първото ниво и три спални с коридор, килер и санитарен възел на второто. Дограмата е сменена с ПВЦ, на прозорците са поставени външни ролетни щори. Има изградена инсталация за локално отопление - на дърва, с монтирани радиатори във всички стаи. Покривът също е реновиран, в отлично състояние. Направена е вътрешна изолация на таваните и стените.
Къщата е изградена върху голяма каменна маза. В допълнителна пристройка към къщата има баня, която при желание може да се поднови и да се ползва. Селото е с централна канализация, което е още едно удобство за живущите в него. Дворът не е голям - 480 кв.м., но е уютен, с доста дръвчета, лози, допълнителни стопански постройки, плевня и гараж. Имотът е на асфалтов път, в тихата част на селото и предоставя условия за целогодишно ползване.
Къщата е построена през 1950 год., добре поддържана и наскоро реновирана.
Жилището се простира на 100 кв.м. жилищна площ, състои от остъклена веранда, просторна трапезария с кухня на първото ниво и три спални с коридор, килер и санитарен възел на второто. Дограмата е сменена с ПВЦ, на прозорците са поставени външни ролетни щори. Има изградена инсталация за локално отопление - на дърва, с монтирани радиатори във всички стаи. Покривът също е реновиран, в отлично състояние. Направена е вътрешна изолация на таваните и стените.
Къщата е изградена върху голяма каменна маза. В допълнителна пристройка към къщата има баня, която при желание може да се поднови и да се ползва. Селото е с централна канализация, което е още едно удобство за живущите в него. Дворът не е голям - 480 кв.м., но е уютен, с доста дръвчета, лози, допълнителни стопански постройки, плевня и гараж. Имотът е на асфалтов път, в тихата част на селото и предоставя условия за целогодишно ползване.
ID: 140923830
Контакт с продавача
xxx xxx xxx

