Бизнес
Цена на кв.м: 740
Брой етажи на сградата: 2
Квадратура: 250 кв.м
Квадратура на двора: 3870 кв.м
Година на строителство: 1980 г.
Строителство: Тухла
Отопление: Печка, камина
Състояние на сградата: Завършена
Особености: басейн, паркинг
Описание
Предлагаме за продажба готова за нанасяне двуетажна къща с площ 250 кв.м., разположена в живописното и спокойно село Ритя, с красива панорамна гледка към Стара планина.
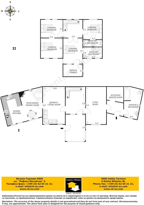
На първия етаж ще откриете светло и уютно антре (зимна градина), което води към коридор, свързващ дневната зона, трапезарията с камина и напълно оборудваната кухня. На този етаж има и кабинет, котелно помещение и баня с тоалетна. Вътрешно стълбище отвежда към втория етаж, където се намират три спални – основна спалня с преходна стая, подходяща за кабинет или детска стая, втора спалня с баня и тоалетна, и трета южна спалня с прилежаща светла баня и тоалетна. На същия етаж е разположена просторна панорамна тераса, откриваща прекрасна гледка към природата.
Къщата разполага с котел за отопление на пелети с изградена система и радиатори в цялата сграда (все още немонтирани), както и собствен водоизточник – кладенец с хидрофорна система. Големият двор с площ от 3870 кв.м. включва басейн, а също и основи на селскостопанска сграда с одобрен архитектурен проект за разширение с две допълнителни стаи.
Тази стилна и функционална къща предлага отлична възможност за комфортен живот сред природата, съчетавайки простор, уют и модерни удобства.
Реф. номер:170282
На първия етаж ще откриете светло и уютно антре (зимна градина), което води към коридор, свързващ дневната зона, трапезарията с камина и напълно оборудваната кухня. На този етаж има и кабинет, котелно помещение и баня с тоалетна. Вътрешно стълбище отвежда към втория етаж, където се намират три спални – основна спалня с преходна стая, подходяща за кабинет или детска стая, втора спалня с баня и тоалетна, и трета южна спалня с прилежаща светла баня и тоалетна. На същия етаж е разположена просторна панорамна тераса, откриваща прекрасна гледка към природата.
Къщата разполага с котел за отопление на пелети с изградена система и радиатори в цялата сграда (все още немонтирани), както и собствен водоизточник – кладенец с хидрофорна система. Големият двор с площ от 3870 кв.м. включва басейн, а също и основи на селскостопанска сграда с одобрен архитектурен проект за разширение с две допълнителни стаи.
Тази стилна и функционална къща предлага отлична възможност за комфортен живот сред природата, съчетавайки простор, уют и модерни удобства.
Реф. номер:170282
ID: 142849846
Контакт с продавача
xxx xxx xxx

