Бизнес
Цена на кв.м: 109
Брой етажи на сградата: 2
Квадратура: 100 кв.м
Квадратура на двора: 1700 кв.м
Година на строителство: 1958 г.
Строителство: Тухла
Отопление: Електричество
Състояние на сградата: Завършена
Описание
Този очарователен селски имот се намира в спокойното село Равново, заобиколено от красиви хълмове и живописни гледки. Селото се радва на отлично местоположение - само на 3 км от общинския град Златарица, на 20 км от историческия град Елена и на 30 км от областния център Велико Търново.
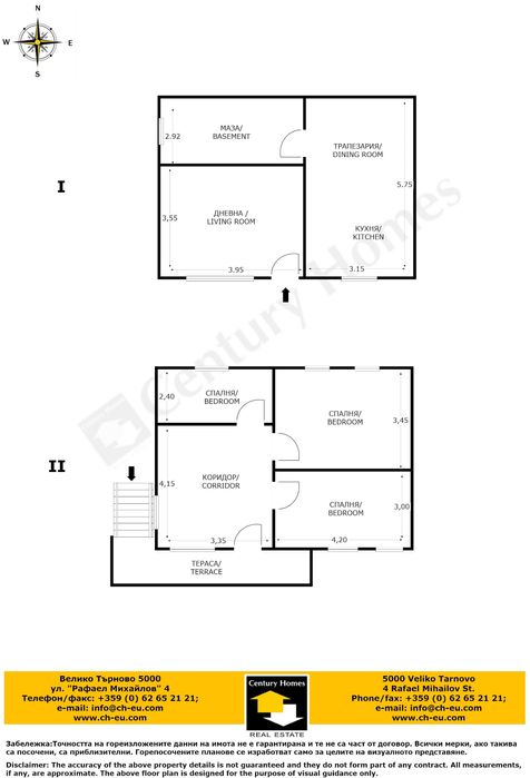
Имотът се състои от двуетажна къща с обща застроена площ от 100 кв.м., предлагаща отличен потенциал за реновиране и персонализиране.
Първият етаж се състои от дневна, кухня с трапезария и мазе, подходящо за съхранение или преустройство в санитарен възел. Вторият етаж, достъпен по външно стълбище, се състои от три спални, просторен коридор и балкон с прекрасна гледка към околните хълмове.
Къщата е с автентични дървени врати, дограма и подови настилки на горното ниво, както и камина в трапезарията. Продава се необзаведена и изисква цялостен ремонт, което дава възможност на купувачите да я реставрират и проектират според собствените си предпочитания.
Къщата е разположена върху парцел от 1700 кв.м. Градината включва разнообразие от овощни дървета и лози, както и достатъчно открито пространство за градинарство, отдих или релаксация. Имотът е достъпен през цялата година по асфалтов път.
Със своята спокойна обстановка, голяма градина и традиционен характер, този имот е идеален за тези, които искат да създадат спокоен селски дом или очарователно бягство в провинцията близо до няколко исторически и културни града.
Реф. номер:130018
Имотът се състои от двуетажна къща с обща застроена площ от 100 кв.м., предлагаща отличен потенциал за реновиране и персонализиране.
Първият етаж се състои от дневна, кухня с трапезария и мазе, подходящо за съхранение или преустройство в санитарен възел. Вторият етаж, достъпен по външно стълбище, се състои от три спални, просторен коридор и балкон с прекрасна гледка към околните хълмове.
Къщата е с автентични дървени врати, дограма и подови настилки на горното ниво, както и камина в трапезарията. Продава се необзаведена и изисква цялостен ремонт, което дава възможност на купувачите да я реставрират и проектират според собствените си предпочитания.
Къщата е разположена върху парцел от 1700 кв.м. Градината включва разнообразие от овощни дървета и лози, както и достатъчно открито пространство за градинарство, отдих или релаксация. Имотът е достъпен през цялата година по асфалтов път.
Със своята спокойна обстановка, голяма градина и традиционен характер, този имот е идеален за тези, които искат да създадат спокоен селски дом или очарователно бягство в провинцията близо до няколко исторически и културни града.
Реф. номер:130018
ID: 145909064
Контакт с продавача
xxx xxx xxx

