Бизнес
Цена на кв.м: 2.73
Местоположение: на търговска улица
Квадратура: 150 кв.м
Година на строителство: 1970 г.
Строителство: Тухла
Брой етажи на сградата: 2
Отопление: Електричество
Особености: паркинг
Описание
Предлагаме под наем магазин, намиращ се в центъра на оживеното и добре устроено село Първомайци, отстоящо само на 5 км. от общинския град Горна Оряховица и на 15 мин. от Велико Търново.
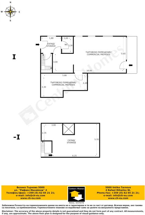
Имотът е с площ 150 кв. м. и се състои от две търговски помещения, склад, санитарен възел и подземно складово помещение. Магазинът е след ремонт, с PVC дограма, климатик, ток, вода и канализация. Подовите настилки са с гранитогрес, а изложението е Изток/Север.
Намира се в самия център на селото, в близост до автобусна спирка. Първомайци е добре развито село, с детска градина, магазини, училище и множество възможности за развиване на търговска дейност.
Реф. номер:120389
Имотът е с площ 150 кв. м. и се състои от две търговски помещения, склад, санитарен възел и подземно складово помещение. Магазинът е след ремонт, с PVC дограма, климатик, ток, вода и канализация. Подовите настилки са с гранитогрес, а изложението е Изток/Север.
Намира се в самия център на селото, в близост до автобусна спирка. Първомайци е добре развито село, с детска градина, магазини, училище и множество възможности за развиване на търговска дейност.
Реф. номер:120389
ID: 146063374
Контакт с продавача
xxx xxx xxx

