Бизнес
Цена на кв.м: 1266.67
Брой етажи на сградата: 2
Квадратура: 300 кв.м
Квадратура на двора: 1200 кв.м
Година на строителство: 2007 г.
Строителство: Гредоред
Отопление: Локално
Състояние на сградата: Завършена
Особености: паркинг
Описание
Представяме ви прекрасен имот в живописното село Емен, само на 25 минути с автомобил от Велико Търново, известно със своята красива екопътека през Еменския каньон.
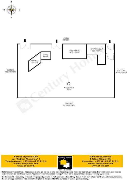
Имотът е с обща жилищна площ от 300 кв. м. и функционираща като къща за гости, което го прави отлична инвестиция или идеален вариант за просторен семеен ваканционен дом. Състои се от две свързани къщи – стара едноетажна и нова двуетажна, построена през 2007 г.
Старата къща включва уютна дневна с кухненски бокс, една спалня и баня с тоалетна.
Новата къща предлага богато пространство: на първия етаж са разположени антре, голяма спалня с четири легла, пълно обзавеждане и собствен санитарен възел, втора спалня с двойно и единично легло и собствен санитарен възел, както и трета преходна спалня с двойно легло. На това ниво, с отделен вход, е обособен удобен офис, подходящ за работа или управление на имота.
Външно стълбище води към тераса на втория етаж, откъдето се влиза в още четири самостоятелни спални, всички с пълно обзавеждане, двойни легла и собствени санитарни възли, като две от тях разполагат и с допълнителни единични легла. Интериорът е изпълнен с качествени материали – PVC дограма, дървени врати, ламинат и гранитогрес, а стените са боядисани с латекс. И двете къщи са с външна изолация и са с южно изложение, като имотът разполага и с две септични ями.
В двора се намира отделна каменна постройка с обзаведена механа, бар и отваряемо остъкление към двора, от която се влиза в оборудвана кухня, складово помещение и санитарен възел. В съседство е разположена още една просторна стая, подходяща за допълнителна спалня, детски кът или хоби помещение.
Парцелът е равен, добре аранжиран и поддържан, с площ от 1200 кв. м., с кладенец, две уютни беседки с маси и пейки, каменно барбекю, две големи дървени двойни врати и обособено място за паркиране на няколко автомобила. Имотът разполага с общо 8 спални и 8 бани с тоалетни, предлагащи комфорт, пространство и възможност за отлична доходност сред красива природа в сърцето на Емен.
Реф. номер:116249
Имотът е с обща жилищна площ от 300 кв. м. и функционираща като къща за гости, което го прави отлична инвестиция или идеален вариант за просторен семеен ваканционен дом. Състои се от две свързани къщи – стара едноетажна и нова двуетажна, построена през 2007 г.
Старата къща включва уютна дневна с кухненски бокс, една спалня и баня с тоалетна.
Новата къща предлага богато пространство: на първия етаж са разположени антре, голяма спалня с четири легла, пълно обзавеждане и собствен санитарен възел, втора спалня с двойно и единично легло и собствен санитарен възел, както и трета преходна спалня с двойно легло. На това ниво, с отделен вход, е обособен удобен офис, подходящ за работа или управление на имота.
Външно стълбище води към тераса на втория етаж, откъдето се влиза в още четири самостоятелни спални, всички с пълно обзавеждане, двойни легла и собствени санитарни възли, като две от тях разполагат и с допълнителни единични легла. Интериорът е изпълнен с качествени материали – PVC дограма, дървени врати, ламинат и гранитогрес, а стените са боядисани с латекс. И двете къщи са с външна изолация и са с южно изложение, като имотът разполага и с две септични ями.
В двора се намира отделна каменна постройка с обзаведена механа, бар и отваряемо остъкление към двора, от която се влиза в оборудвана кухня, складово помещение и санитарен възел. В съседство е разположена още една просторна стая, подходяща за допълнителна спалня, детски кът или хоби помещение.
Парцелът е равен, добре аранжиран и поддържан, с площ от 1200 кв. м., с кладенец, две уютни беседки с маси и пейки, каменно барбекю, две големи дървени двойни врати и обособено място за паркиране на няколко автомобила. Имотът разполага с общо 8 спални и 8 бани с тоалетни, предлагащи комфорт, пространство и възможност за отлична доходност сред красива природа в сърцето на Емен.
Реф. номер:116249
ID: 146158572
Контакт с продавача
xxx xxx xxx

