Бизнес
Цена на кв.м: 1830.99
Брой етажи на сградата: 3
Квадратура: 142 кв.м
Квадратура на двора: 249 кв.м
Година на строителство: 1960 г.
Строителство: Тухла
Отопление: Електричество
Състояние на сградата: Завършена
Особености: гараж, канализация
Описание
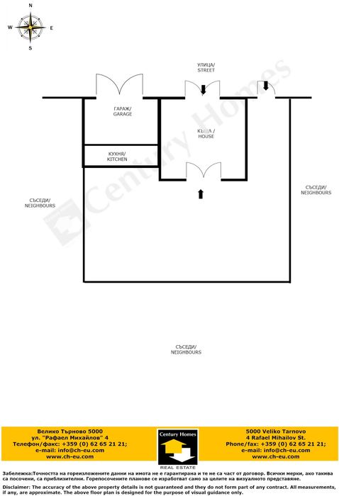
Разположена в самия център на Велико Търново, тази триетажна къща предлага 142 кв.м. жилищна площ върху парцел от 249 кв.м., с гараж и лятна кухня. Имотът е в добро конструктивно състояние, но се нуждае от ремонт – отлична възможност да създадете своя дом мечта в един от най-желаните исторически градове в България.
Основният етаж включва дълъг коридор, кухня с излаз на тераса, просторен хол с тоалетна и спалня с тераса с изглед към тихия заден двор. От коридора вътрешно стълбище води както към долното, така и към горното ниво.
На долния етаж са разположени две спални и баня с тоалетна, а на таванското ниво има още една спалня и две допълнителни тавански помещения, които могат да бъдат пригодени според вашите нужди.
Имотът разполага с одобрено строително разрешение за надстрояване на още етажи, което му дава отличен инвестиционен потенциал.
Със своето централно местоположение, гараж, собствен двор и гъвкаво вътрешно разпределение, този дом е рядка находка – подходящ както за инвестиция, така и за удобно семейно жилище във Велико Търново.
Реф. номер:105595
Основният етаж включва дълъг коридор, кухня с излаз на тераса, просторен хол с тоалетна и спалня с тераса с изглед към тихия заден двор. От коридора вътрешно стълбище води както към долното, така и към горното ниво.
На долния етаж са разположени две спални и баня с тоалетна, а на таванското ниво има още една спалня и две допълнителни тавански помещения, които могат да бъдат пригодени според вашите нужди.
Имотът разполага с одобрено строително разрешение за надстрояване на още етажи, което му дава отличен инвестиционен потенциал.
Със своето централно местоположение, гараж, собствен двор и гъвкаво вътрешно разпределение, този дом е рядка находка – подходящ както за инвестиция, така и за удобно семейно жилище във Велико Търново.
Реф. номер:105595
ID: 145417716
Контакт с продавача
xxx xxx xxx

