Бизнес
Цена на кв.м: 1064.29
Етаж: 2
Квадратура: 70 кв.м
Година на строителство: 1932 г.
Строителство: Гредоред
Последен етаж
Отопление: Електричество
Особености: канализация
Описание
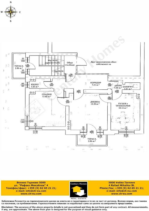
Имотът заема втори етаж от къща, в самия център на Велико Търново.
Етажът има собствен вход и е с площ 70,45 кв.м. Състои се от три помещения с южно изложение - кухня с трапезария, дневна и спалня, а също баня с тоалетна, всички свързани от коридор. Една от стаите има излаз на панорамна тераса, с прекрасна гледка към града и хълм Царевец.
В жилището е започнат основен ремонт. Сменена е дограмата с нова PVC и са поставени нови външни ролетни щори. Подовите настилки са с дървено дюшеме, а стените с латекс.
Имотът е разположен на тиха улица, в сърцето на Велико Търново, в близост до парк "Майка България" и 5-ти корпус на ВТУ. Жилището е отлична инвестиция, която след реновиране ще се превърне в уютен дом или прекрасно място за отдаване под наем.
Реф. номер:105587
Етажът има собствен вход и е с площ 70,45 кв.м. Състои се от три помещения с южно изложение - кухня с трапезария, дневна и спалня, а също баня с тоалетна, всички свързани от коридор. Една от стаите има излаз на панорамна тераса, с прекрасна гледка към града и хълм Царевец.
В жилището е започнат основен ремонт. Сменена е дограмата с нова PVC и са поставени нови външни ролетни щори. Подовите настилки са с дървено дюшеме, а стените с латекс.
Имотът е разположен на тиха улица, в сърцето на Велико Търново, в близост до парк "Майка България" и 5-ти корпус на ВТУ. Жилището е отлична инвестиция, която след реновиране ще се превърне в уютен дом или прекрасно място за отдаване под наем.
Реф. номер:105587
ID: 144587397
Контакт с продавача
xxx xxx xxx

