Бизнес
Цена на кв.м: 1758.24
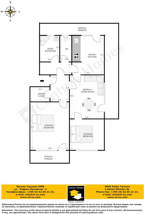
Тип апартамент: 3 - стаен
Квадратура: 91 кв.м
Година на строителство: 1983 г.
Строителство: Тухла
Етаж: 3-ти
Брой етажи на сградата: 4
Отопление: Електричество
Обзавеждане: Обзаведен
Състояние на сградата: Завършена
Преход: Без преход
Особености: гараж
Описание
Просторен апартамент с 4 помещения за продажба в самия център на Велико Търново, разположен на бул. „България“, на 3-тия етаж в малка жилищна сграда. Имотът предлага 91 кв.м. жилищна площ, с функционално разпределение, включващо входно антре, две спални, преходен хол, самостоятелна кухня, тоалетна, баня, килер и две тераси. Едната от тях е дълга Г-образна тераса, която свързва кухнята и хола, осигурявайки уютно пространство за отдих.
Апартаментът е добре поддържан и запазва своя автентичен ретро чар, като същевременно разполага с практични подобрения като PVC дограма, запазен паркет и климатик в хола. Помещенията са просторни и светли, осигуряващи комфорт и функционалност за ежедневен живот.
Към жилището се предлагат и няколко ценни допълнения: гараж с площ 20 кв.м., таванско помещение и избено помещение, осигуряващи допълнително пространство за съхранение.
Апартаментът се намира на отлично централно място, с бърз достъп до всички градски удобства – магазини, училища, ресторанти и обществен транспорт, което го прави идеален както за удобно семейно жилище, така и като добра инвестиция с отличен потенциал за отдаване под наем.
Имотът съчетава чара на класическия интериор с удобствата на съвременния живот в една от най-желаните зони на Велико Търново.
Реф. номер:104966
Апартаментът е добре поддържан и запазва своя автентичен ретро чар, като същевременно разполага с практични подобрения като PVC дограма, запазен паркет и климатик в хола. Помещенията са просторни и светли, осигуряващи комфорт и функционалност за ежедневен живот.
Към жилището се предлагат и няколко ценни допълнения: гараж с площ 20 кв.м., таванско помещение и избено помещение, осигуряващи допълнително пространство за съхранение.
Апартаментът се намира на отлично централно място, с бърз достъп до всички градски удобства – магазини, училища, ресторанти и обществен транспорт, което го прави идеален както за удобно семейно жилище, така и като добра инвестиция с отличен потенциал за отдаване под наем.
Имотът съчетава чара на класическия интериор с удобствата на съвременния живот в една от най-желаните зони на Велико Търново.
Реф. номер:104966
ID: 145684611
Контакт с продавача
xxx xxx xxx

