Бизнес
Цена на кв.м: 1466.67
Тип апартамент: 2 - стаен
Квадратура: 60 кв.м
Година на строителство: 2025 г.
Строителство: Тухла
Етаж: 5-ти
Брой етажи на сградата: 5
Последен етаж
Отопление: Електричество
Обзавеждане: Необзаведен
Състояние на сградата: В строеж
Преход: Без преход
Особености: асансьор
Описание
Предлаганото за продажба жилище се намира в новострояща се жилищна сграда в кв. Бузлуджа, гр. Велико Търново. Сградата е на пет етажа - изградена от висококачествени материали.
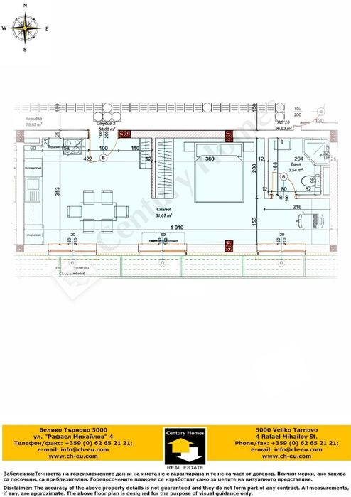
Апартаментът е с южно изложение и РЗП 67,26 кв.м., от които чиста жилищна площ 60 кв.м и общи части 7,26 кв.м.. Разположен на 5-ти етаж, той се състои от просторна всекидневна с кухненски бокс /25 кв.м./, спалня, баня с тоалетна и тераса.
Сградата разполага с гаражи на сутеренния етаж, а на покрива ще бъде изградена собствена фотоволтаична система 30kw, която ще покрива разходите за електрическа енергия в общите части, за асансьор, както и две зарядни станции за зареждане на електрически автомобили. Към всеки апартамента може да бъде закупен гараж/ 20 кв.м./ на цени от 800 до 1000 евро за кв.м. или паркомясто.
В близост до сградата се намират училище, детска градина, аптека, хранителни магазини и автобусна спирка.
Сградата разполага и с тристайни апартаменти, с различни квадратури, етаж и изложение. Предлага се гъвкава разсрочена схема на плащане спрямо погасителните вноски.
Срокът за издаване на жилището с АКТ 16 е до края на 2025 година.
Реф. номер:104959
Апартаментът е с южно изложение и РЗП 67,26 кв.м., от които чиста жилищна площ 60 кв.м и общи части 7,26 кв.м.. Разположен на 5-ти етаж, той се състои от просторна всекидневна с кухненски бокс /25 кв.м./, спалня, баня с тоалетна и тераса.
Сградата разполага с гаражи на сутеренния етаж, а на покрива ще бъде изградена собствена фотоволтаична система 30kw, която ще покрива разходите за електрическа енергия в общите части, за асансьор, както и две зарядни станции за зареждане на електрически автомобили. Към всеки апартамента може да бъде закупен гараж/ 20 кв.м./ на цени от 800 до 1000 евро за кв.м. или паркомясто.
В близост до сградата се намират училище, детска градина, аптека, хранителни магазини и автобусна спирка.
Сградата разполага и с тристайни апартаменти, с различни квадратури, етаж и изложение. Предлага се гъвкава разсрочена схема на плащане спрямо погасителните вноски.
Срокът за издаване на жилището с АКТ 16 е до края на 2025 година.
Реф. номер:104959
ID: 145417889
Контакт с продавача
xxx xxx xxx